Move cursor for panoramic view

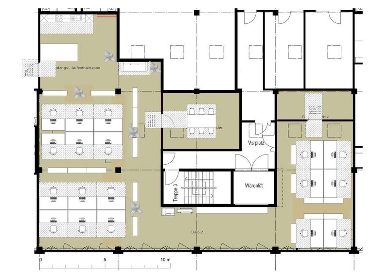
Ausgebaute Bürofläche mit Zugang zum Warenlift

  • Location Blegistrasse 11A
    6340 Baar
  • Floor 2nd floor
  • Rental price 140.00 CHF/m²/year
  • Usable area 292 m²
  • Type Office / Commercial
  • Availability nach Vereinbarung

Property description

Das attraktive Geschäftshaus befindet sich an einer verkehrstechnisch hervorragenden Lage. Die Autobahneinfahrt in Richtung Zug, Zürich und Luzern ist in unmittelbarer Nähe zu erreichen.

Diverse Verpflegungsmöglichkeiten erreichen Sie in wenigen Gehminuten.

Advantages

  • Ausgebaute Büroräumlichkeiten mit Zugang zum Warenlift
  • Direkter Zugang zur Anlieferungsrampe inklusive Hebebühne
  • Die Räumlichkeiten geniessen dank der Fensterfront und der Oblichter viel Tageslicht
  • Verkehrsgünstiger Standort zwischen den Wirtschaftszentren Zug und Zürich
  • In 2 Minuten beim Autobahnanschluss A4A Sihlbrugg
  • Direkt bei der Bushaltestelle "Pfaffentobel"

Offer

  • 2. Obergeschoss
  • Nutzfläche 292 m²
  • 4 Parkplätze in der Autoeinstellhalle
  • 4 Parkplätze im Freien
CHF/m²/year CHF/month
Rental price (net) CHF/m²/year 140.00 CHF/month 3407.00
Ancillary costs CHF/m²/year 26.50 CHF/month 645.00
Underground slot CHF/m²/year CHF/month 142.00
Open slot CHF/m²/year CHF/month 55.00

All prices without value added tax

Property details

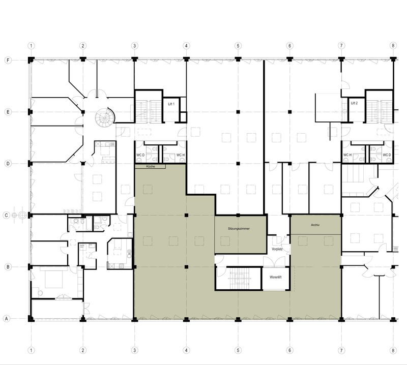
    • Ausgebaute Bürofläche (Empfangs-/Aufenthaltszone, Grossraumbüro, Sitzungszimmer, Archivraum)
    • Vinylboden beim Eingangsbereich, restliche Fläche mit hochwertigem Teppich
    • Schallabsorbierende Decke vorhanden
    • Bestehende Küche: Kann in Absprache mit dem Vormieter eventuell übernommen werden
    • Max. Bodenbelastung: 500 kg/m²
    • Baujahr: 1991
    • Anzahl Geschosse: 3
    • Raumhöhe im 2. Obergeschoss: 3 m (roh)
    • Personenlift (Nutzlast: 1000 kg)
    • Warenlift (Nutzlast: 2500 kg)
    • Überdeckte Verladestation mit Anpassrampe und Hebebühne
    • WC-Anlagen im Treppenhaus (Damen/Herren getrennt) zur Mitbenützung
    • Mitbenutzungsrecht an Dusche im Untergeschoss
    • Fernwärme
Location

Blegistrasse 11A
6340 Baar

Show on Google Maps