Move cursor for panoramic view

Attraktiv ausgebaute Laden- / Ausstellungsfläche mit klimatisierten Büros

  • Location Blegistrasse 11B
    6340 Baar
  • Floor Ground Floor
  • Rental price 174.00 CHF/m²/year
  • Usable area 368 m²
  • Type Commercial / Office / Advertising area
  • Availability 01.07.2026

Property description

Das attraktive Geschäftshaus befindet sich an einer verkehrstechnisch hervorragenden Lage. Die Autobahneinfahrt in Richtung Zug, Zürich und Luzern ist in unmittelbarer Nähe zu erreichen.

Diverse Verpflegungsmöglichkeiten erreichen Sie in wenigen Gehminuten.

Advantages

  • Repräsentative Ausstellungsfläche mit unterteiltem Bürobereich
  • Fertig ausgebaute Mieträume
  • Klimatisierte Büroräume
  • Verkehrsgünstiger Standort zwischen den Wirtschaftszentren Zug und Zürich
  • In 2 Minuten beim Autobahnanschluss A4A Sihlbrugg
  • Direkt bei der Bushaltestelle "Pfaffentobel"

Offer

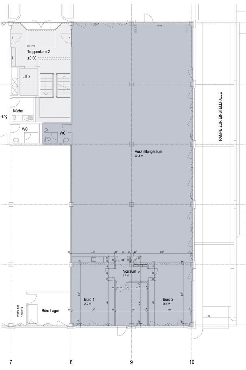
  • Erdgeschoss
  • Nutzfläche: 368 m²
  • Diverse Parkplätze in der Autoeinstellhalle / im Freien
CHF/m²/year CHF/month
Rental price (net) CHF/m²/year 174.00 CHF/month 5336.00
Ancillary costs CHF/m²/year 20.00 CHF/month 614.00
Underground slot CHF/m²/year CHF/month 142.00
Open slot CHF/m²/year CHF/month 55.00

All prices without value added tax

Property details

    • Insgesamt 368 m² Nutzfläche, davon
      • 290 m² offene Ausstellungsfläche mit Bodenplatten, grosser offener Küche, Sektionaltor für direkte Anlieferung/Abholung (3 m Durchfahrt)
      • 78 m² klimatisierter, unterteilter Bürobereich: 2 Büros und 1 Sitzungszimmer
    • Alarmanlage inkl. Videoüberwachung vorhanden
    • Eigene WC-Anlage
    • Max. Bodenbelastung: 2000 kg/m²
    • Baujahr: 1991
    • Anzahl Geschosse: 3
    • Raumhöhe im Erdgeschoss: 4.10 m (roh)
    • Personenlift (Nutzlast: 1000 kg)
    • Mitbenutzungsrecht an Dusche im Untergeschoss
    • Fernwärme
Location

Blegistrasse 11B
6340 Baar

Show on Google Maps