Move cursor for panoramic view

Lager/Archiv mit Tageslicht

Gewerbegebiet Sennweid, Steinhausen

  • Location Sennweidstrasse 44
    6312 Steinhausen
  • Floor 2nd floor
  • Rental price 142.00 CHF/m²/year
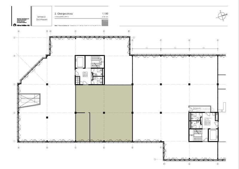
  • Surface 227 m²
  • Type Storage room
  • Availability starting immediately

Property description

In unmittelbarer Nähe zur Autobahn, Bahn- und Bushaltestelle bieten wir Ihnen im Gewerbegebiet Sennweid ein vielseitiges Angebot an Nutzungsvarianten. Verpflegungsmöglichkeiten sowie das Einkaufszentrum erreichen Sie in Gehdistanz.

Advantages

  • Praktischer Grundriss mit einem abgetrennten Raum
  • Zugang zum Warenlift
  • Schallschutzdecke mit integrierter Deckenbeleuchtung

Offer

  • 2. Obergeschoss
  • Lagerfläche 227 m²
CHF/m²/year CHF/month
Rental price (net) CHF/m²/year 142.00 CHF/month 2686.15
Ancillary costs CHF/m²/year 15.00 CHF/month 283.75

All prices without value added tax

Property details

    • Boden Zementüberzug roh
    • Fenster aus Holz/Metall
    • Verbundraffstoren mit Kurbelantrieb
    • Mineralfaser-Decke Schall absorbierend
    • Deckenleuchten in Deckenplatten integriert
    • Elektroverteilung über abgehängte Decke und Brüstungskanäle
    • 1 Internetanschluss
    • Baujahr: 1996
    • Anzahl Geschosse: 4
    • Bodenbelastung: 500 kg/m²
Location

Sennweidstrasse 44
6312 Steinhausen

Show on Google Maps