Move cursor for panoramic view

Vielseitig nutzbare Büroflächen in Rotkreuz

Jetzt entdecken und einziehen!

  • Location Birkenstrasse 43a/b
    6343 Rotkreuz
  • Floor 2nd floor
  • Rental price 160.00 CHF/m²/year
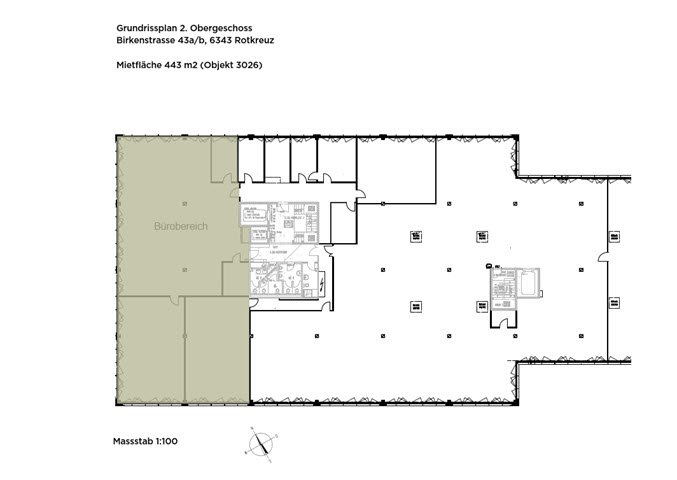
  • Usable area 443 m²
  • Type Office
  • Availability starting immediately

Property description

An der Birkenstrasse 43a/b in Rotkreuz steht eine Bürofläche von 443 m² zur Miete.

Die als Mehrzweckgebäude konzipierte Liegenschaft erlaubt eine überdurchschnittlich vielseitige und zudem flexible Nutzung. Der bestehende Ausbau umfasst moderne bezugsbereite Büroflächen. 

Die Mietfläche überzeugt durch ihre grosszügigen Raumhöhen von 3 Metern, die in Kombination mit den lichtdurchfluteten Räumen ein offenes und inspirierendes Arbeitsumfeld schaffen. Die Mietfläche ist über ein Treppenhaus zugänglich, welches über einen Personen- sowie einen Warenlift verfügt. 

In wenigen Minuten ist die Autobahn erreichbar. Ebenso ist der Anschluss an den öffentlichen Verkehr (Bahn und Bus) bequem zu Fuss zu erreichen. Zahlreiche Verpflegungsmöglichkeiten befinden sich in unmittelbarer Umgebung und Gehdistanz.

So könnten Ihre neuen Büroflächen aussehen (Beispiel aus Gesamtfläche 634 m²): 3D-Rundgang

Advantages

  • Ausgebaute Büroflächen
  • Attraktives Preis-/Leistungsverhältnis
  • Bestehender Innenausbau spart Investitionen
  • Zentrale Lage für Verbindungen in alle Richtungen
  • Autobahnanschluss und ÖV in Kürze erreichbar

Offer

  • Nutzfläche 443 m² im 2. Obergeschoss
  • Parkplätze im Freien

Der Nettomietzins von CHF 160.–/m² gilt für den Grundausbau. Der bestehende Innenausbau kann zur Nutzung übernommen werden. 

Die angebotene Fläche ist eine Teilflächenvariante von einer Gesamtbürofläche von 634 m². Kontaktieren Sie uns für Ihre optimale Fläche!

CHF/m²/year CHF/month
Rental price (net) CHF/m²/year 160.00 CHF/month 5906.65
Ancillary costs CHF/m²/year 23.00 CHF/month 849.10
Open slot CHF/m²/year CHF/month 75.00

All prices without value added tax

Property details

    • Voll ausgebaute Büros und Sitzungszimmer
    • Elektrische Installationen und Grundbeleuchtung vorhanden
    • Weitere Raumunterteilungen flexibel möglich
    • Raumhöhe 3 Meter
    • Maximale Bodenbelastung 750kg/m²
    • Autobahnanschluss in 800 Meter Entfernung
    • Bushaltestelle direkt vor der Tür
    • Bahnhof in Kürze zu Fuss erreichbar (700 Meter)
    • Umfassende Verpflegungsmöglichkeiten in der näheren Umgebung
    • Baujahr: 1998
    • Anzahl Geschosse: 3
    • Rollstuhltauglich
    • Treppenhaus mit einem Personenaufzug (630 kg) und einem Warenlift (1 600 kg) sowie WC-Anlagen pro Stockwerk
Location

Birkenstrasse 43a/b
6343 Rotkreuz

Show on Google Maps