Cursor bewegen für Panorama-Ansicht

Temporäre Nutzung, die sich lohnt!

Büro-/Gewerbeflächen ab 250 m² bis 3 024 m²

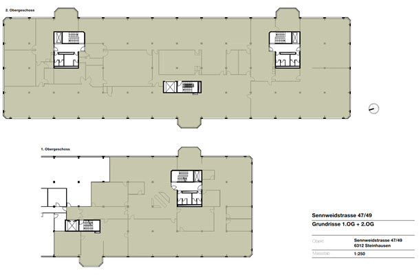
  • Standort Sennweidstrasse 47/49
    6312 Steinhausen
  • Geschoss 1. Obergeschoss
  • Mietpreis 120.00 CHF/m²/J.
  • Nutzfläche 2000 m²
  • Art Büro / Gewerbe
  • Verfügbarkeit ab sofort

Objekt Beschreibung

Ihr Unternehmen benötigt eine temporäre Mietfläche?
Unser Angebot ist ideal für Büronutzungen, Projektbüros, Schulungsflächen, Backoffice, Dienstleister und Unternehmen mit einem temporären Flächenbedarf.

Für das Büro- und Gewerbehaus Sennweidstrasse 47/49 in Steinhausen ist ab Ende 2029 eine umfassende Sanierung geplant. Zur befristeten Zwischennutzung vermieten wir auf einer Gesamtfläche von 3 024 m² flexibel unterteilbare Büro- und Gewerbeflächen.  

Die Mietflächen sind komplett ausgebaut und können in diesem Zustand bezogen werden. Teilen Sie uns Ihren Flächenbedarf (ab 250 m² Mindestmietfläche) mit und wir finden eine für Ihre Bedürfnisse passende Mietfläche.  

Verkehrstechnisch ist die Liegenschaft ideal gelegen. Die Autobahn ist in wenigen Minuten erreichbar. Ebenso ist der Anschluss an den öffentlichen Verkehr (Bus vor Haus und Bahn 800 m) bequem zu Fuss zu erreichen.

Vorteile

  • Ideal für temporäre Auslagerungen, Projekt- oder Übergangsphasen
  • Keine langfristigen Verpflichtungen
  • Attraktive budgetfreundliche Mietkonditionen
  • Bestehender Innenausbau spart Investitionen
  • Umfangreiches Parkplatzangebot
  • Top Erreichbarkeit für Mitarbeiter und Kunden

Angebot

  • 1. und 2. Obergeschoss
  • Nutzflächen ab 250 m² bis 3 052 m²
  • Parkplätze im Freien vorhanden
CHF/m²/J.
Mietpreis (netto) CHF/m²/J. 120.00
Nebenkosten CHF/m²/J. 35.00

Alle Preise ohne Mehrwertsteuer

Objekt Details

  • Der bestehende Innenausbau umfasst (je nach Flächenvariante) im Wesentlichen:

    • Ausbau als offene Bürofläche
    • Diverse Sitzungszimmer
    • Teeküche mit Geschirrspüler und Kühlschrank
    • Textiler Bodenbelag
    • Abgehängte Decken mit integrierten Deckenleuchten
    • Raumbelüftung
    • Bushaltestelle direkt vor dem Haus 
    • Bahnhof 800 m
    • Autobahnanschluss 2 000 m
    • Das Dorfzentrum Steinhausen sowie das Einkaufscenter Zugerland mit Verpflegungs-/Einkaufsmöglichkeiten sind in wenigen Gehminuten erreichbar
    • Baujahr: 1989
    • Anzahl Geschosse: 3
    • 2 Treppenhäuser mit zentralen WC-Anlagen pro Stockwerk
    • Personenlift 1 000 kg
    • Warenlift 1 600 kg
Standort

Sennweidstrasse 47/49
6312 Steinhausen

Auf Google Maps anzeigen