Cursor bewegen für Panorama-Ansicht

Bezugsbereite Büros in der Städtler Allmend

Prisma - Hier macht Arbeiten Freude

  • Standort Hinterbergstrasse 18
    6312 Steinhausen
  • Geschoss 1. Obergeschoss
  • Mietpreis 240.00 CHF/m²/J.
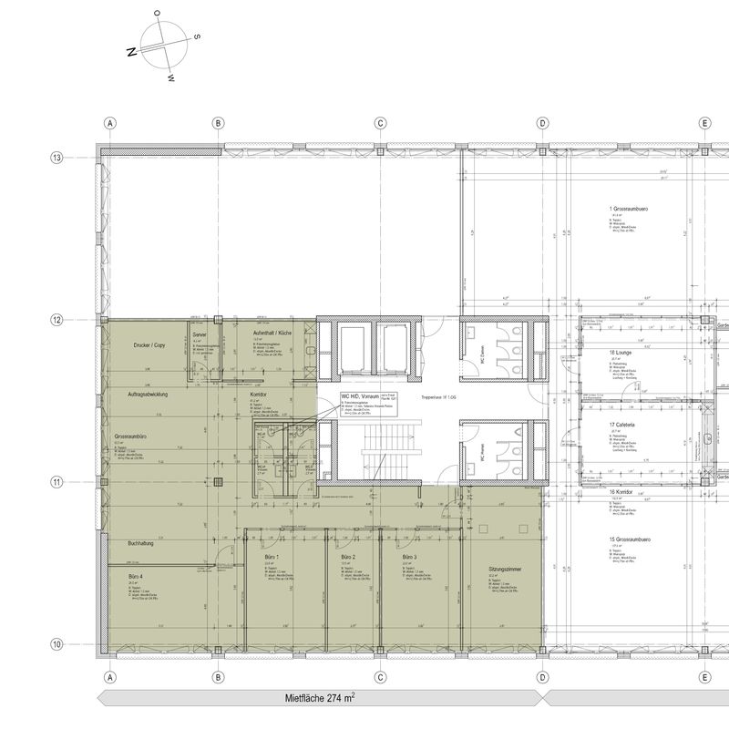
  • Nutzfläche 274 m²
  • Art Büro
  • Verfügbarkeit 01.04.2026

Objekt Beschreibung

Am Stadtrand von Zug, unweit vom Autobahnanschluss Zug-West und Migros Einkaufszentrum «Zugerland» befindet sich der repräsentative Dienstleistungs-Park «Prisma».

Vorteile

274 m² bezugsbereite Bürofläche mit Einzelbüros, Grossraumbüro, Sitzungszimmer, Serverraum, eigenen WC-Anlagen und Cafeteria

  • Repräsentatives Geschäftshaus mit international bekannten Nachbarn
  • 2 Minuten zur Autobahn und S5-Bahnhaltestelle Rigiblick nach Zürich HB oder Zug - Ihr Vorteil in der Mitarbeiterrekrutierung
  • 30 Minuten zum Flughafen Zürich über die Autobahn A4
  • Kindertagesstätte und Restaurant im Nachbargebäude
  • Grosse Auswahl an Verpflegungs-, Sport- und Einkaufsmöglichkeiten in Gehdistanz

Angebot

  • 274 m² bezugsbereite Bürofläche im 1. Obergeschoss
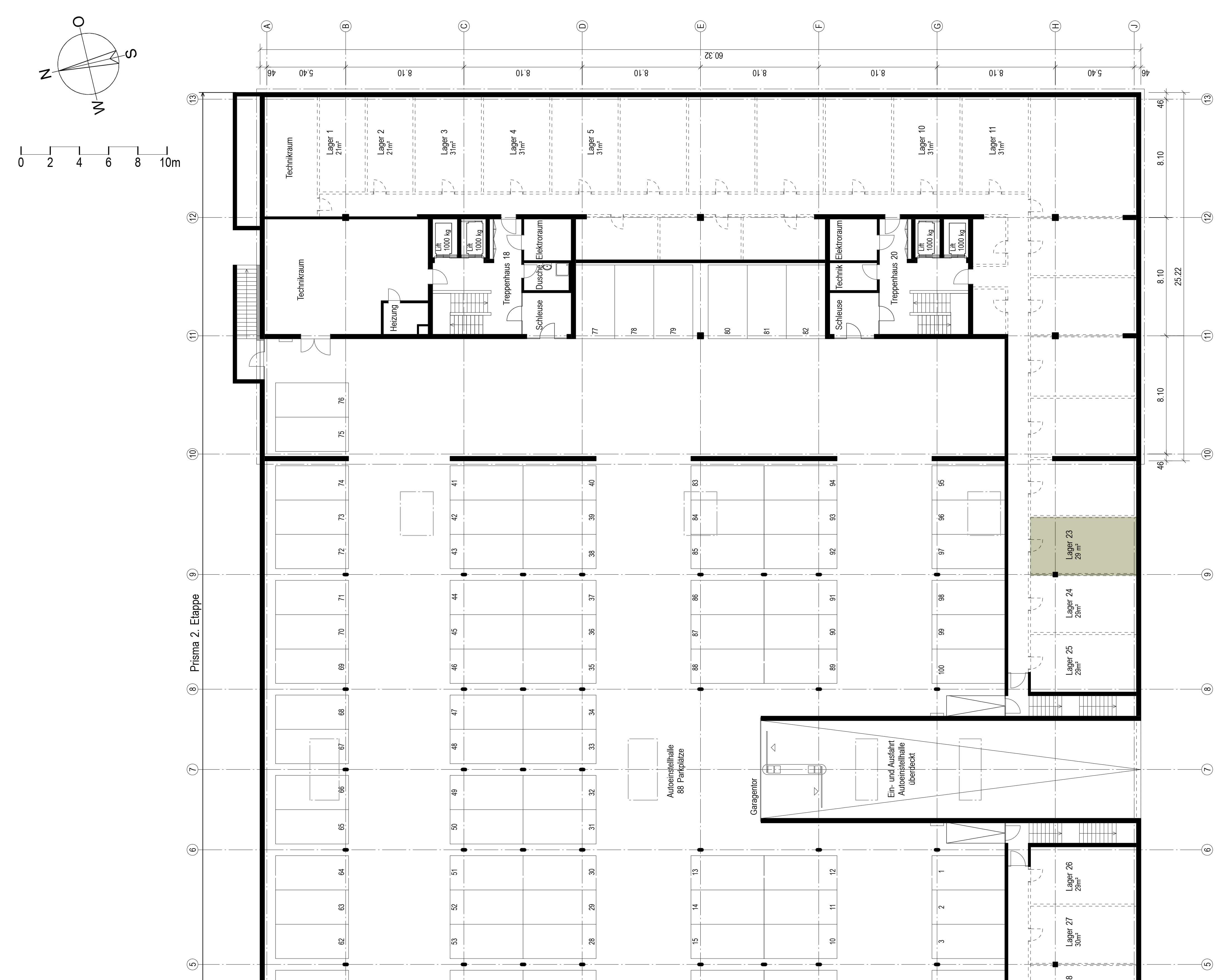
  • 29 m² Lager im Untergeschoss kann dazu gemietet werden
  • Pool-Parkplätze in Autoeinstellhalle und im Freien vorhanden
  • Elektroladestationen für E-Fahrzeuge vorhanden
  • Gebührenpflichtige Besucher-Parkplätze vorhanden
CHF/m²/J. CHF/Mt.
Mietpreis (netto) CHF/m²/J. 240.00 CHF/Mt. 5480.00
Nebenkosten CHF/m²/J. 30.00 CHF/Mt. 685.00
Lagerpreis CHF/m²/J. 110.00 CHF/Mt. 266.00
Lager Nebenkosten CHF/m²/J. 17.00 CHF/Mt. 41.00
Parkplatz in Autoeinstellhalle CHF/m²/J. CHF/Mt. 190.00
Parkplatz im Freien CHF/m²/J. CHF/Mt. 95.00

Alle Preise ohne Mehrwertsteuer

Objekt Details

  • Grundausbau

    • Raumhöhe 1. Obergeschoss 2.95 m
    • Nutzlast 1. Obergeschoss 500 kg/m²
    • Verbundraffstoren aus Aluminium mit Elektroantrieb
    • Wärmeerzeugung durch Wärme-Pumpen-Heizsystem mit Energiepfählen und Unterstützung durch eine Erdgasheizung
    • WC-Anlagen Damen/Herren im Treppenhaus
    • Sportler-Dusche/Umkleide im Untergeschoss
    • Dachterrasse mit Berg- und Seesicht sowie schattige Sitzplätze im Freien

    Bestehender Innenausbau 274 m² Bürofläche im 1. Obergeschoss

    • Büro mit Teppichboden
    • Systemtrennwände in Glas ergänzt mit Gipswänden
    • Elektroerschliessung vorhanden
    • Abgehängte Metalldecke mit teilweiser Grundbeleuchtung
    • Cafeteria mit Einbauküche und Plattenbelag
    • Büroräumlichkeiten belüftet
    • Private Damen-/Herren-WCs in der Mietfläche
    • Möblierung kann in Absprache mit bestehendem Mieter übernommen werden

    Bestehender Innenausbau 29 m² Bruttonutzfläche im Untergeschoss

    • Boden Zementüberzug gestrichen
    • Decke und Wände gestrichen
    • Elektroanschlüsse und Grundbeleuchtung vorhanden
    • 2 Gehminuten zur S5-Bahnhaltestelle Rigiblick nach Zürich HB oder Zug
    • Ristorante Prisma im Gebäude und weitere Verpflegungsmöglichkeiten in Gehdistanz
    • Einkaufszentrum «Zugerland» in 5 Gehminuten erreichbar
    • 8 Geschosse
    • Treppenhaus mit Personen- und Servicelift
    • Toiletten Damen/Herren im Treppenhaus
    • Öffentliche, gebührenpflichtige Besucher-Parkplätze im Freien
    • Überdeckte Veloabstellplätze



Standort

Hinterbergstrasse 18
6312 Steinhausen

Auf Google Maps anzeigen