
Räumlichkeit für Büro oder Schulungsraum
Büroräume für flexible Nutzung
-
Lieu Industriestrasse 30
4542 Luterbach -
Etage 1er étage
-
Prix de location 155.00 CHF/m²/an
-
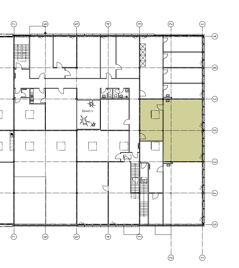
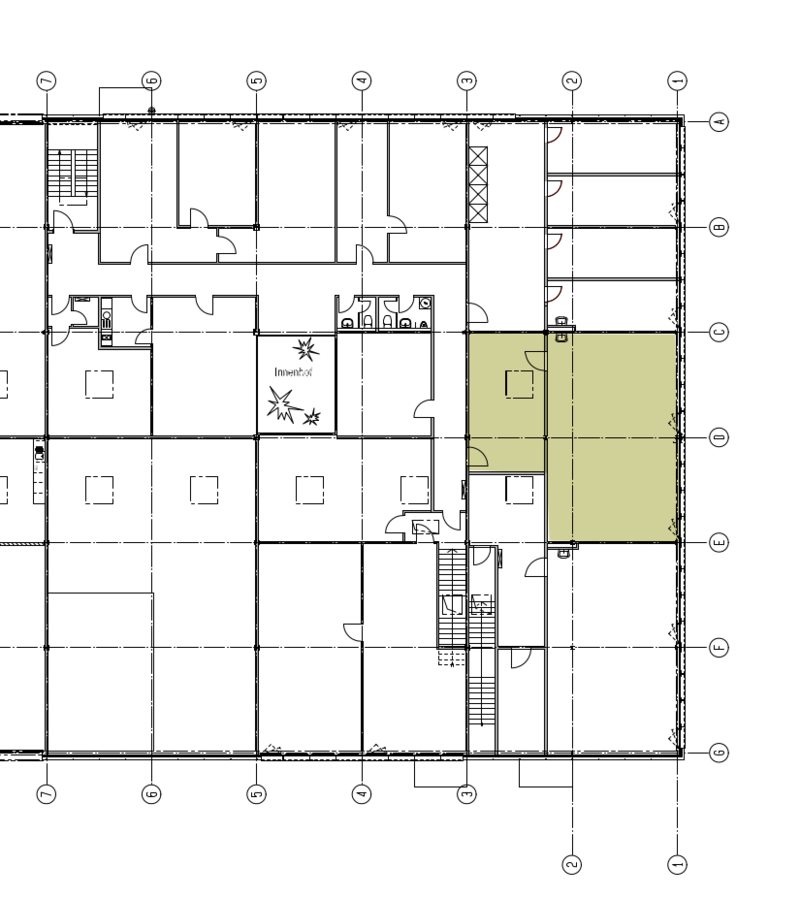
Surface utile 107 m²
-
Type Industrie / Bureau / Industrie
-
Disponibilité 01.01.2026
Description de l'objet
Das Gebäude liegt in der Gewerbezone an günstiger Verkehrslage.
Die Anschlüsse A5 und A1 sind in 5 Fahrminuten erreichbar. Die Bahnverbindungen sind an der Hauptachse Romanshorn-Genf. Es erwartet Sie ein vielseitiges Angebot an Nutzungsvarianten und Möglichkeiten.
Avantages
- Bezugsbereite, fertig ausgebaute Gewerbefläche
- Mitbenützung Sitzungszimmer und Teeküche
- Gutes Preis-/Leistungsverhältnis
- Autobahnanschluss A5 und A1 in 5 Fahrminuten erreichbar
Offre
- 1. Obergeschoss
- Nutzfläche 107 m²
- 6 Parkplätze im Freien (optional)
- Lagerraum im Untergeschoss (optional)
CHF/m²/an | CHF/mois | |
---|---|---|
Prix de location (net) | CHF/m²/an 155.00 | CHF/mois 1382.10 |
Charges | CHF/m²/an 20.00 | CHF/mois 178.35 |
Place de parc à l'extérieur | CHF/m²/an | CHF/mois 45.00 |
Prix sans TVA
Détails de l'objet
-
- Maximale Bodenbelastung: 500 kg/m²
- Boden mit Kugelgarn-Teppichbelag
- Wände weiss gestrichen
- Decke mit abgehängter, schallabsorbierender Mineralfaserdecke
- Strom und Telefonanschluss
- Beleuchtungen
- Lavabo
-
- Commerces 950 m
- Transports publics 650 m
- 2.5 km zum Autobahn-Anschluss «A5 + A1»
- Bahnhof Luterbach in 10 Gehminuten erreichbar
- Post, Bank, Läden und Verpflegung/Restaurants sind ca. 8 Gehminuten entfernt
-
- Baujahr: 2000
- 2 Geschosse
- Multifunktionales Gebäude
- WC-Anlagen auf der Etage
-