Déplacer le curseur pour la vue panoramique

Preiswerte Büro- und Gewerbeflächen

Flexible Flächen nach Ihren Bedürfnissen

  • Lieu Birkenstrasse 43a/b
    6343 Rotkreuz
  • Etage 2ème étage
  • Prix de location 160.00 CHF/m²/an
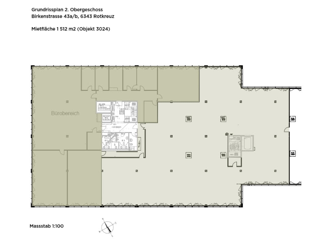
  • Surface utile 1512 m²
  • Type Bureau
  • Disponibilité 01.07.2026

Description de l'objet

An der Birkenstrasse 43a/b in Rotkreuz steht eine Büro- und Gewerbefläche von 1 512 m² zur Miete.

Die als Mehrzweckgebäude konzipierte Liegenschaft erlaubt eine überdurchschnittlich vielseitige und zudem flexible Nutzung. Die Räume eignen sich besonders für die verschiedensten Bedürfnisse von Büro-, Gewerbe-, Handels- und Dienstleistungsbetrieben.

Der bestehende Ausbau umfasst moderne, bezugsbereite Büroflächen (634 m²) mit mehreren Sitzungszimmern. Ein funktionaler Aufenthaltsraum mit Teeküche sorgt für zusätzlichen Komfort im Arbeitsalltag. Die weiteren Flächen von 878 m² befinden sich im Gewerbeausbau mit PVC-Boden oder Zementüberzug und bieten dadurch individuelle Gestaltungsmöglichkeiten nach Ihren Bedürfnissen.

Die Mietflächen überzeugen durch ihre grosszügigen Raumhöhen von 3 Metern, die in Kombination mit den lichtdurchfluteten Räumen ein offenes und inspirierendes Arbeitsumfeld schaffen. Im Erdgeschoss befindet sich eine praktische Verladerampe, die eine komfortable und effiziente Warenanlieferung ermöglicht. Ein geräumiger Warenlift führt direkt in die Mietfläche – ideal für logistische Abläufe und den täglichen Betrieb. 

Die Autobahneinfahrt ist in wenigen Minuten erreichbar. Ebenso ist der Anschluss an den öffentlichen Verkehr (Bahn und Bus) bequem zu Fuss zu erreichen. Zahlreiche Verpflegungsmöglichkeiten befinden sich in unmittelbarer Umgebung und Gehdistanz.

So könnten Ihre neuen Büro- und Gewerbeflächen aussehen: 3D-Rundgang

Avantages

  • Ausgebaute Büro- und Gewerbeflächen
  • Attraktives Preis-/Leistungsverhältnis
  • Bestehender Innenausbau spart Investitionen
  • Warenlift führt direkt in das Mietobjekt
  • Lichtdurchflutete Räume durch Fensterfronten und Oblichter
  • Zentrale Lage für Verbindungen in alle Richtungen
  • Autobahnanschluss und ÖV in Kürze erreichbar

Offre

  • Nutzfläche 1 512 m² im 2. Obergeschoss
  • 24 Parkplätze im Freien

Das 2. Obergeschoss besteht aus verschiedenen Flächenvarianten. Die Miete der Gesamt- oder Teilflächen ist wie folgt möglich:

Büro- und Gewerbeflächen 3 052 m² per 01.07.2026 (Gesamtfläche)
Büro- und Gewerbeflächen 2 418 m² per 01.07.2026
Büro- und Gewerbeflächen 1 540 m² per 01.07.2026 
Büro- und Gewerbeflächen 878 m² per 01.07.2026 
Büroflächen 634 m² per 01.10.2025

CHF/m²/an CHF/mois
Prix de location (net) CHF/m²/an 160.00 CHF/mois 20 160.00
Charges CHF/m²/an 21.00 CHF/mois 2646.00
Place de parc à l'extérieur CHF/m²/an CHF/mois 75.00

Prix sans TVA

Détails de l'objet

    • Grundausbau mit teilweise bestehendem Innenausbau
    • Ausgebauter Bürobereich 634 m² mit Teppichboden 
    • Aufenthaltsraum mit Teeküche
    • Boden Gewerbeteil (878 m²) mit Zementüberzug roh oder PVC
    • Elektrische Installationen und Grundbeleuchtung vorhanden
    • Die Flächen können flexibel umgestaltet werden
    • Raumhöhe 3 Meter
    • Maximale Bodenbelastung 750 kg/m²
    • Autobahnanschluss in 800 Meter Entfernung
    • Bushaltestelle direkt vor der Tür
    • Bahnhof in Kürze zu Fuss erreichbar (700 Meter)
    • Umfassende Verpflegungsmöglichkeiten in der näheren Umgebung
    • Baujahr: 1998
    • Anzahl Geschosse: 3
    • Rollstuhltauglich
    • Verladerampe und Hebebühne im Erdgeschoss
    • Warenlift in Mietfläche (1 600 kg)
    • Treppenhaus mit Personenaufzug (630 kg) und Warenlift (1 600 kg) sowie WC-Anlagen pro Stockwerk
Lieu

Birkenstrasse 43a/b
6343 Rotkreuz

Afficher sur Google Maps