Cursor bewegen für Panorama-Ansicht

Zentrum Pilatus Kriens

Ihre Chance an bester Lage

  • Standort Stadtplatz 2
    6010 Kriens
  • Geschoss Erdgeschoss
  • Mietpreis 231.00 CHF/m²/J.
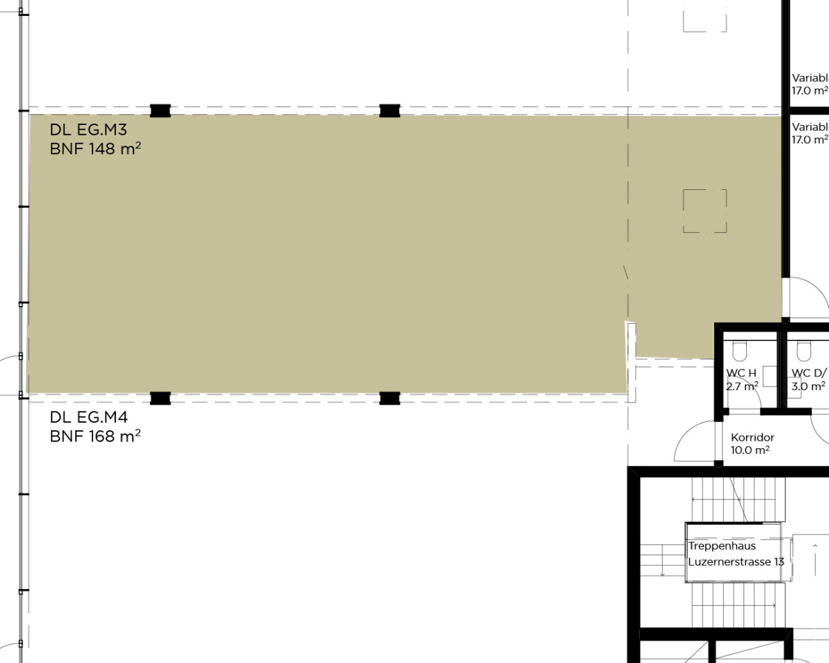
  • Nutzfläche 165 m²
  • Art Büro / Büro / Atelier / Laden / Praxis / Schaufenster
  • Verfügbarkeit ab sofort

Objekt Beschreibung

Die Einwohnergemeinde Kriens und die Alfred Müller AG haben gemeinsam das Projekt «Zentrum Pilatus Kriens» realisiert. Im repräsentativen Gebäude befinden sich die Räumlichkeiten der Stadtverwaltung, der multifunktionale Pilatussaal,  Laden-/Büroflächen und 30 Mietwohnungen. Das Gebäude ist im Minergie-P-Standard erstellt und seit 1. Dezember 2018 in Betrieb.

Die Alfred Müller AG hat im Erdgeschoss verschiedene Laden- und Dienstleistungsflächen, sowie Büroflächen im 1. Obergeschoss vermietet.

 

Vorteile

  • Zentrale Lage und optimale Verkehrserschliessung
  • Firmensitz in repräsentativem Gebäude
  • Post, AXA und CONCORDIA als Ihre zukünftigen Nachbarn
  • Idealer Standort für Agenturen, Praxen, Läden und Büros

Angebot

  • Erdgeschoss
  • Gesamte Nutzfläche 165m² (Laden-/Bürofläche inkl. Variabler Raum von 17 m²)
  • Parkplätze in der Autoeinstellhalle auf Anfrage (zzgl. Mietzins)

 

Konditionen Mietfläche mit Grund- und Innenausbau:

Nettomietzins: CHF 231.00 pro m²/Jahr
Nebenkosten: CHF 25.00 pro m²/Jahr
Bruttomietzins: CHF 256.00 pro m²/Jahr

CHF/m²/J. CHF/Mt.
Mietpreis (netto) CHF/m²/J. 231.00 CHF/Mt. 3180.00
Nebenkosten CHF/m²/J. 25.00 CHF/Mt. 343.00
Parkplatz in Autoeinstellhalle CHF/m²/J. CHF/Mt. 170.00

Alle Preise ohne Mehrwertsteuer

Objekt Details

  • Grundausbau:

    • Doppelbodensystem (Platten 60/60 cm), Aufbauhöhe 12 cm
    • Decke Beton roh, mit sichtbar geführtem Haupt-Leitungspaket für Wärme/Lüftung/Kälte (Anschluss für Feinverteilung mit Klima-Decken-Segel)
    • Wärmeverteilung durch TABS-Register (Thermoaktives Bauteilsystem: Grundlastheizung im Winter, minimale Kühlung im Sommer) in Betondecke eingelegt. 
    • Getrennte WC-Anlagen für Damen/Herren/IV in Mietfläche integriert (bereits ausgebaut)

    Innenausbau:

    • Teeküche, gut ausgestattet mit einem Einbaukühlschrank, einer Mikrowelle und einem Geschirrspüler. Die Abdeckung besteht aus einem Naturstein und die Spannplatten, Fronten und Sichtseiten sind allseitig mit kunstharz Hochglanz beschichtet.
    • Individuelle Raumtemperatur-Regulierung erfolgt über Klima-Decken-Segel.
    • Öffentlicher Verkehr 50 m
    • Autobahnanschluss 1500 m
    • Einkaufen 50 m
    • Gastronomie 50 m
    • Baujahr: 2018
    • Anzahl Geschosse: 6
    • Raumhöhe: 2.73m
    • Qualitäts-Küche (inkl. Kühlschrank, Geschirrspüler, Mikrowelle)
    • Multimediaverteiler mit Fiber erschlossen (Glasfaser-Anschlussmöglichkeiten)
    • Moderne WC-Anlagen 
    • Doppelbodensystem
    • Kühldecken
    • Personenlift
Standort

Stadtplatz 2
6010 Kriens

Auf Google Maps anzeigen