Cursor bewegen für Panorama-Ansicht

704 m² Bürofläche in Baar | 3 Monate mietzinsfrei

  • Standort Lindenstrasse 2
    6340 Baar
  • Geschoss 2. Obergeschoss
  • Mietpreis 200.00 CHF/m²/J.
  • Nutzfläche 704 m²
  • Art Büro
  • Verfügbarkeit ab sofort

Objekt Beschreibung

Mehr als nur Bürofläche – flexible Unternehmensadresse im wirtschaftsstarken Baar
Jetzt profitieren: 3 Monate mietzinsfrei bei Vertragsabschluss

Im etablierten Geschäftszentrum Lindenpark in Baar erwartet Sie eine hochwertige Bürofläche mit 704 m² Nutzfläche, die ideale Voraussetzungen für unterschiedlichste Unternehmenskonzepte bietet. Die Kombination aus hervorragender Erreichbarkeit, attraktivem Preis-Leistungs-Verhältnis und steuerlich vorteilhaftem Standort macht diese Fläche besonders interessant für wachsende Unternehmen und Dienstleister.

Bereits beim Betreten überzeugt die Fläche durch helle Räume, grosszügige Verkehrsflächen sowie einen funktionalen und modernen Innenausbau. Die vorhandene Raumstruktur ermöglicht sowohl klassische Büroorganisationen als auch offene oder spezialisierte Nutzungskonzepte.

Ein Blick ins Innere:
Erkunden Sie die Büroräumlichkeiten bequem vorab im 3D-Rundgang und verschaffen Sie sich einen realistischen Eindruck der Räume.

3D Rundgang

Vorteile

  • Attraktiver Unternehmensstandort im steuergünstigen Baar (Kanton Zug)
  • 3 Monate mietzinsfrei – ideal für einen entspannten Standortwechsel
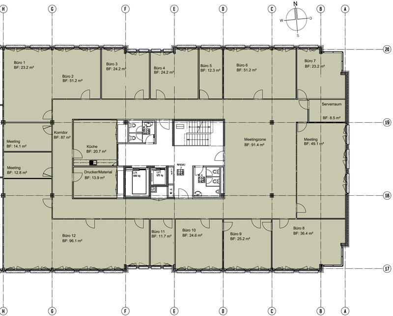
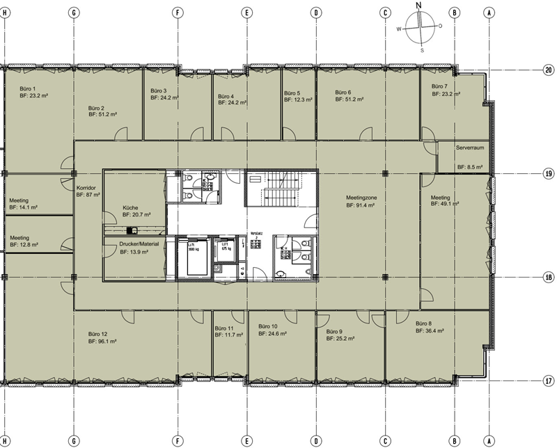
  • 704 m² zusammenhängende Bürofläche mit effizienter Raumaufteilung
  • Grosszügiger Tageslichteinfall in sämtlichen Räumen
  • Hochwertiger, sofort nutzbarer Innenausbau
  • Sehr gute Erreichbarkeit mit ÖV und Individualverkehr
  • Autobahnanschluss in wenigen Minuten erreichbar
  • Besucherparkplätze direkt vor Ort
  • Einstellhallen- und Aussenparkplätze verfügbar

Angebot

  • 704 m² Bürofläche im 2. Obergeschoss
  • Parkplätze in der Einstellhalle sowie Aussenabstellplätze verfügbar


Konditionen (mit Grund- und Innenausbau):

Nettomietzins: CHF 200.– / m²/Jahr
Nebenkosten: CHF 25.– / m²/Jahr
Bruttomietzins: CHF 225.– / m²/Jahr

CHF/m²/J. CHF/Mt.
Mietpreis (netto) CHF/m²/J. 200.00 CHF/Mt. 11 733.35
Nebenkosten CHF/m²/J. 25.00 CHF/Mt. 1466.65

Alle Preise ohne Mehrwertsteuer

Objekt Details

    • 14 helle Büro- und Meetingräume mit Tageslichteinfall
    • offener, einladender Empfangsbereich
    • 3 geschlossene Räume
    • Teeküche mit Platz für Pausen und informellen Austausch
    • Glas-Trennwände zum Korridor mit integrierten Rafflamellen für Lichtdurchlässigkeit und Diskretion
    • Hochwertiger Pergo-Laminatboden in den Büroflächen
    • Pflegeleichter PVC-Bodenbelag in der Teeküche

     

    • 2 Gehminuten zur Bus-Haltestelle Stadtgrenze
    • 3 Gehminuten zur Stadtbahn-Haltestelle Lindenpark
    • 18 Gehminuten zum Bahnhof Zug
    • Wenige Gehminuten zu diversen Verpflegungsmöglichkeiten
    • Öffentlicher Verkehr 80 m, Autobahnanschluss 1000 m
    • Baujahr: 2008
    • Anzahl Geschosse: 5
    • Personen- und Warenlift
    • WC-Anlagen im Treppenhaus zur Mitbenützung
    • Sportlerdusche im Untergeschoss Lindenstrasse 2 zur Mitbenützung
    • Autoeinstellhalle mit direktem Zugang zum Treppenhaus
Standort

Lindenstrasse 2
6340 Baar

Auf Google Maps anzeigen