Cursor bewegen für Panorama-Ansicht

Attraktive Gewerbeflächen an idealer Lage

Für unterschiedlichste Nutzungen geeignet!

  • Standort Birkenstrasse 43a/b
    6343 Rotkreuz
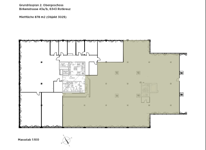
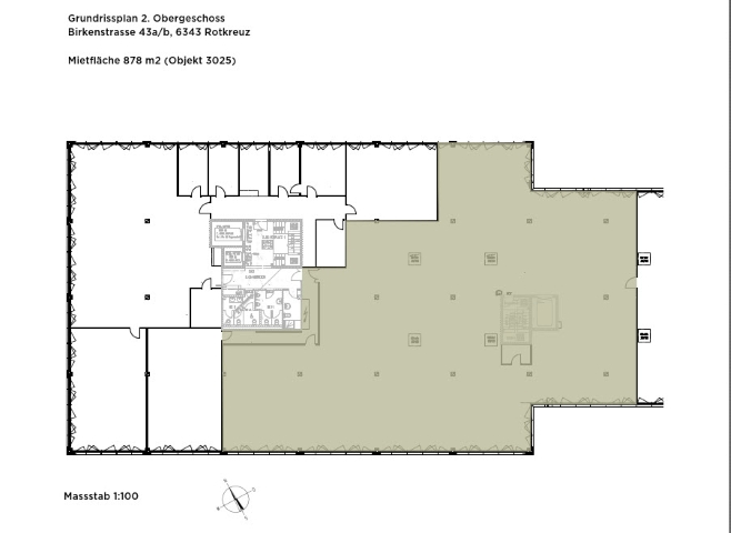
  • Geschoss 2. Obergeschoss
  • Mietpreis 160.00 CHF/m²/J.
  • Nutzfläche 878 m²
  • Art Büro
  • Verfügbarkeit 01.07.2026

Objekt Beschreibung

An der Birkenstrasse 43a/b in Rotkreuz steht eine Gewerbefläche von 878 m² zur Miete.

Die als Mehrzweckgebäude konzipierte Liegenschaft erlaubt eine überdurchschnittlich vielseitige und zudem flexible Nutzung. Dadurch eignen sich die Räumlichkeiten besonders für die verschiedensten Bedürfnisse von Büro-, Gewerbe-, Handels- und Dienstleistungsbetrieben. Die Mietflächen befinden sich im Gewerbeausbau mit PVC-Boden oder Zementüberzug und bieten dadurch individuelle Gestaltungsmöglichkeiten nach Ihren Bedürfnissen.

Ausserdem überzeugen die Mietflächen durch ihre grosszügigen Raumhöhen von 3 Metern, die in Kombination mit den lichtdurchfluteten Räumen ein offenes und inspirierendes Arbeitsumfeld schaffen. Im Erdgeschoss befindet sich eine praktische Verladerampe, die eine komfortable und effiziente Warenanlieferung ermöglicht. Ein Warenlift führt direkt in die Mietfläche – ideal für logistische Abläufe und den täglichen Betrieb. 

In wenigen Minuten ist die Autobahn erreichbar. Ebenso ist der Anschluss an den öffentlichen Verkehr (Bahn und Bus) bequem zu Fuss zu erreichen. Zahlreiche Verpflegungsmöglichkeiten befinden sich in unmittelbarer Umgebung und Gehdistanz.

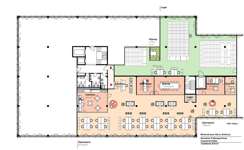
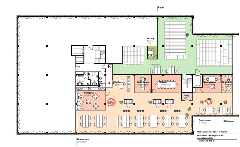
So könnten Ihre neuen Büro- und Gewerbeflächen aussehen: 3D-Rundgang

Vorteile

  • Ausgebaute Gewerbeflächen 
  • Attraktives Preis-/Leistungsverhältnis
  • Bestehender Innenausbau spart Investitionen
  • Warenlift führt direkt in das Mietobjekt
  • Lichtdurchflutete Räume durch Fensterfronten und Oblichter
  • Zentrale Lage für Verbindungen in alle Richtungen
  • Autobahnanschluss und ÖV in Kürze erreichbar

Angebot

  • Nutzfläche 878 m² im 2. Obergeschoss
  • Parkplätze im Freien

Der Nettomietzins von CHF 160.–/m² gilt für den Grundausbau. Der bestehende Innenausbau kann zur Nutzung übernommen werden.

Das 2. Obergeschoss besteht aus verschiedenen Büro- und Gewerbeflächen ab 190 m² bis 3 052 m². Kontaktieren Sie uns und finden Sie Ihre ideale Fläche!

CHF/m²/J. CHF/Mt.
Mietpreis (netto) CHF/m²/J. 160.00 CHF/Mt. 11 707.00
Nebenkosten CHF/m²/J. 20.00 CHF/Mt. 1463.00
Parkplatz im Freien CHF/m²/J. CHF/Mt. 75.00

Alle Preise ohne Mehrwertsteuer

Objekt Details

    • Grundausbau mit teilweise bestehendem Innenausbau
    • Boden Zementüberzug oder PVC
    • Elektrische Installationen und Grundbeleuchtung vorhanden
    • Die Flächen können flexibel umgestaltet werden
    • Raumhöhe 3 Meter
    • Maximale Bodenbelastung 750 kg/m²
    • Autobahnanschluss in 800 Meter Entfernung
    • Bushaltestelle direkt vor der Tür
    • Bahnhof in Kürze zu Fuss erreichbar (700 Meter)
    • Umfassende Verpflegungsmöglichkeiten in der näheren Umgebung
    • Baujahr: 1998
    • Anzahl Geschosse: 3
    • Rollstuhltauglich
    • Verladerampe und Hebebühne im Erdgeschoss
    • Warenlift in Mietfläche (1 600 kg)
    • Treppenhaus mit Personenaufzug (630 kg) und Warenlift (1 600 kg) sowie WC-Anlagen pro Stockwerk
Standort

Birkenstrasse 43a/b
6343 Rotkreuz

Auf Google Maps anzeigen