Cursor bewegen für Panorama-Ansicht

Attraktive Gewerbefläche im Erdgeschoss

Für Produktion und Lager mit Hebebühne

  • Standort Oberneuhofstrasse 8
    6340 Baar
  • Geschoss Erdgeschoss
  • Mietpreis 175.00 CHF/m²/J.
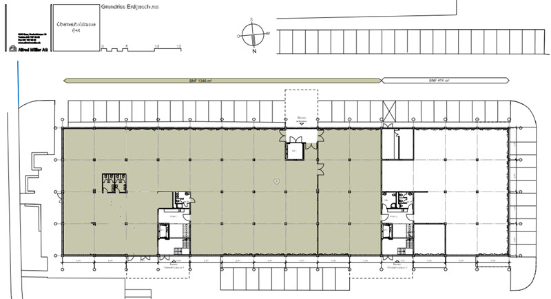
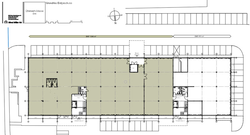
  • Nutzfläche 1346 m²
  • Art Gewerbe
  • Verfügbarkeit Nach Vereinbarung

Objekt Beschreibung

Das Geschäftshaus befindet sich unweit des Autobahnanschlusses Baar und ist daher verkehrstechnisch gut gelegen. Die S1-Haltestelle Baar-Neufeld mit regelmässigen Verbindungen zu den Bahnhöfen Baar und Zug ist in wenigen Gehminuten erreichbar.

Vorteile

  • Mietfläche im Erdgeschoss für verschiedenste Nutzungen
  • Top Erschliessung mit ÖV und Individualverkehr
  • Die Fläche verfügt über zwei ebenerdige Zugänge via Falttore
  • Hebebühne auf der Rückseite des Hauses
  • Lagergestelle können erworben werden

Angebot

  • Erdgeschoss
  • Nutzfläche 1 346 m² Bruttofläche
  • 25 Parkplätze im Freien (4 davon vor den Falttoren)
CHF/m²/J. CHF/Mt.
Mietpreis (netto) CHF/m²/J. 175.00 CHF/Mt. 19 629.00
Nebenkosten CHF/m²/J. 25.00 CHF/Mt. 2804.00
Parkplatz im Freien CHF/m²/J. CHF/Mt. 80.00

Alle Preise ohne Mehrwertsteuer

Objekt Details

    • Die Mietfläche wird im Grundausbau vermietet. Der bestehende Innenausbau kann übernommen werden. 
    • Maximale Bodenbelastung: 2000kg/m²
    • Raumhöhe 4.06 Meter
    • Holz-Metallfenster
    • Baujahr 1980
    • Anzahl Geschosse: 4
    • Personenlift
    • Zentrale WC-Anlagen Damen/Herren getrennt im Treppenhaus
    • Photovoltaikanlage
    • Glasfaseranschluss
    • Fernwärme

     

Standort

Oberneuhofstrasse 8
6340 Baar

Auf Google Maps anzeigen