Per la visione panoramica muovere il cursore

Klein-Büro - ideal für Startup's

  • Ubicazione Hinterbergstrasse 9
    6330 Cham
  • Piano 3° Piano superiore
  • Affitto 990.00 CHF/mese
  • Superficie utile 33.5 m²
  • Tipo Ufficio
  • Disponibilità 01.06.2026

Descrizione immobile

Das Büro- und Geschäftsgebäude liegt im Gebiet Städtler Allmend in Cham. Die verkehrstechnische Erschliessung für den öffentlichen, wie auch den Individualverkehr ist ausgezeichnet. In der Umgebung sind diverse Verpflegungs- und Einkaufsmöglichkeiten vorhanden, welche auch bestens zu Fuss erreicht werden können.

Vantaggi

  • Fertig ausgebaute Bürofläche
  • Alle Kosten im Griff dank monatlichem Fixbetrag (im Mietzins sind alle Nebenkosten wie Heiz-, Hauswart-, Stromkosten, usw. inbegriffen)
  • Ideal für Jung- und Kleinunternehmen dank flexiblen Mietbedingungen
  • Mitbenutzung gemeinsame Teeküche / Entrée
  • 2 Minuten zur Autobahn zum Autobahn-Anschluss Luzern/Zürich
  • 5 Minuten zu Fuss zur S5-Bahnhaltestelle Steinhausen Rigiblick mit direkter Verbindung nach Zug und Zürich HB
  • Einkaufsmöglichkeiten wie das Einkaufszentrum Zugerland und diverse Restaurants in 10 Gehminuten erreichbar
  • Naherholungsgebiet sowie Fitnesscenter in unmittelbarer Nähe

Offerta

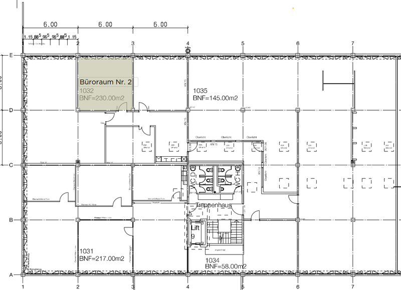
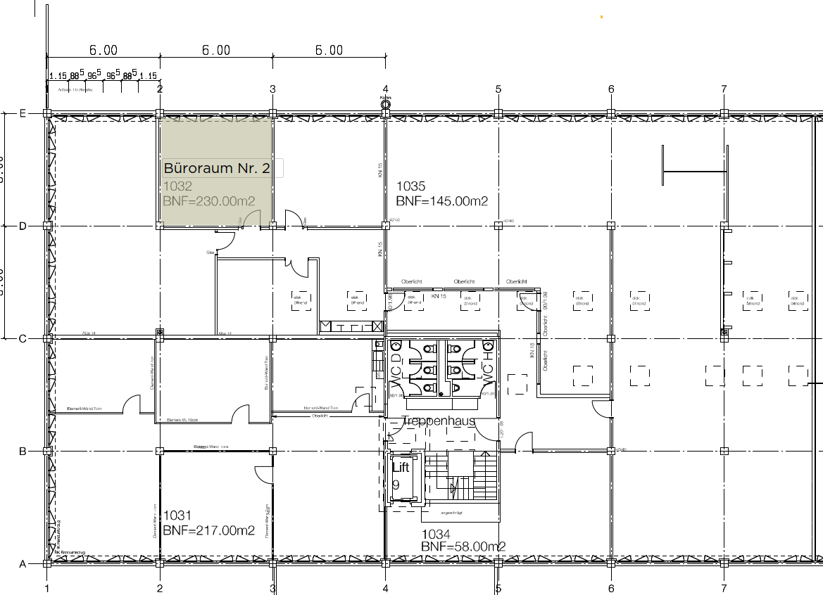
Zurzeit steht folgendes Einzelbüro im Angebot:

  • 1 Einzelbüro Nr. 2, ca. 33.5 m² für CHF 990 pro Monat
  • Parkplätze im Freien für CHF 60 pro Monat und Platz (optional)
CHF/mese
Affitto (netto) CHF/mese 990.00
Parcheggio esterno CHF/mese 60.00

Dettagli immobile

    • Bürofläche mit Teppichbelag
    • Wände weiss gestrichen
    • Schallabsorbierende Mineralfaserdecke mit Deckenleuchten
    • Wandschränke
    • Fensterfront aus Holz/Metall
    • Brüstungskanal sowie Steckdosen
    • Maximale Bodenbelastung: 500 kg/m²
    • Teeküche und Entrée (gemeinschaftliche Nutzung)
    • 2 Gehminuten zur Bushaltestelle Chamerried
    • 5 Gehminuten zur Stadtbahn-Haltestelle Rigiblick
    • 2 Fahrminuten zum Autobahn-Anschluss Luzern/Zürich
    • 30 Fahrminuten zum Flughafen Zürich über die Autobahn A4
    • Wenige Gehminuten zu diversen Verpflegungs- und Einkaufsmöglichkeiten wie das Einkaufszentrum Zugerland
    • Baujahr: 1981
    • Renovationsjahr 2010
    • Anzahl Geschosse: 4
    • Personenlift
    • Zentrale WC-Anlagen Damen/Herren getrennt im Treppenhaus
Ubicazione

Hinterbergstrasse 9
6330 Cham

Mostra su Google Maps