Déplacer le curseur pour la vue panoramique

Büroträume werden wahr

Bezugsfertige Büroflächen für Ihr Unternehmen!

  • Lieu Birkenstrasse 43a/b
    6343 Rotkreuz
  • Etage 2ème étage
  • Prix de location 160.00 CHF/m²/an
  • Surface utile 634 m²
  • Type Industrie
  • Disponibilité dès de suite

Description de l'objet

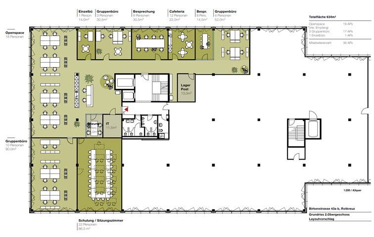
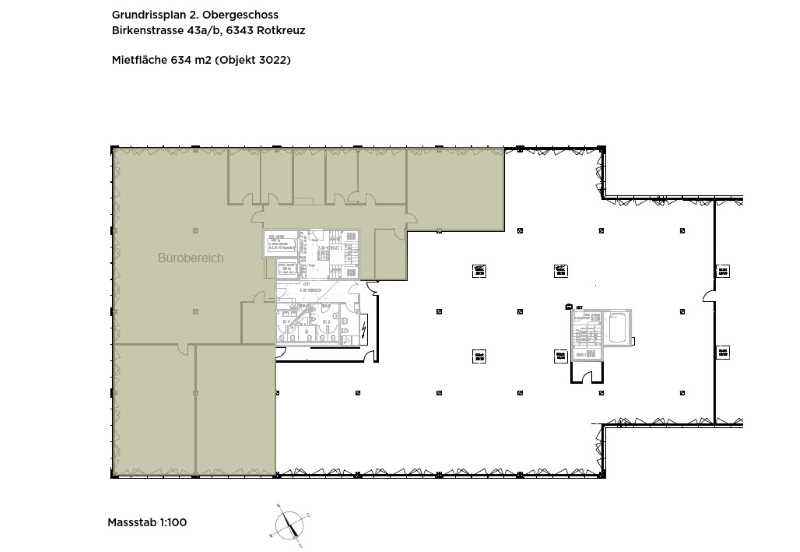
An der Birkenstrasse 43a/b in Rotkreuz steht eine Bürofläche von 634 m² zur Miete.

Die als Mehrzweckgebäude konzipierte Liegenschaft erlaubt eine überdurchschnittlich vielseitige und zudem flexible Nutzung. Der bestehende Ausbau umfasst moderne, bezugsbereite Büroflächen sowie mehrere Sitzungszimmer. Ein funktionaler Aufenthaltsraum mit Teeküche sorgt für zusätzlichen Komfort im Arbeitsalltag. 

Die Mietfläche überzeugt durch ihre grosszügigen Raumhöhen von 3 Metern, die in Kombination mit den lichtdurchfluteten Räumen ein offenes und inspirierendes Arbeitsumfeld schaffen. 

Die Mietfläche ist über ein Treppenhaus zugänglich, welches über einen Personen- sowie einen Warenlift verfügt. 

Die Autobahneinfahrt ist in wenigen Minuten erreichbar. Ebenso ist der Anschluss an den öffentlichen Verkehr (Bahn und Bus) bequem zu Fuss zu erreichen. Zahlreiche Verpflegungsmöglichkeiten befinden sich in unmittelbarer Umgebung und Gehdistanz.

So könnten Ihre neuen Büroflächen aussehen: 3D-Rundgang

Avantages

  • Ausgebaute Büroflächen
  • Attraktives Preis-/Leistungsverhältnis
  • Bestehender Innenausbau spart Investitionen
  • Lichtdurchflutete Räume durch rundum vorhandene Fensterfronten
  • Zentrale Lage für Verbindungen in alle Richtungen
  • Autobahnanschluss und ÖV in Kürze erreichbar

Offre

  • Nutzfläche 634 m² im 2. Obergeschoss
  • 10 Parkplätze im Freien

Das 2. Obergeschoss besteht aus verschiedenen Flächenvarianten. Die Miete der Gesamt- oder Teilflächen ist wie folgt möglich:

Büro- und Gewerbeflächen 3 052 m² per 01.07.2026 (Gesamtfläche)
Büro- und Gewerbeflächen 2 418 m² per 01.07.2026
Büro- und Gewerbeflächen 1 540 m² per 01.07.2026 
Büro- und Gewerbeflächen 1 512 m² per 01.07.2026
Büro- und Gewerbeflächen 878 m² per 01.07.2026 

CHF/m²/an CHF/mois
Prix de location (net) CHF/m²/an 160.00 CHF/mois 8453.00
Charges CHF/m²/an 23.00 CHF/mois 1215.00
Place de parc à l'extérieur CHF/m²/an CHF/mois 75.00

Prix sans TVA

Détails de l'objet

    • Voll ausgebaute Büros und Sitzungszimmer
    • Aufenthaltsraum mit Teeküche
    • Elektrische Installationen und Grundbeleuchtung vorhanden
    • Weitere Raumunterteilungen flexibel möglich
    • Raumhöhe 3 Meter
    • Maximale Bodenbelastung 750kg/m²
    • Autobahnanschluss in 800 Meter Entfernung
    • Bushaltestelle direkt vor der Tür
    • Bahnhof in Kürze zu Fuss erreichbar (700 Meter)
    • Umfassende Verpflegungsmöglichkeiten in der näheren Umgebung
    • Baujahr: 1998
    • Anzahl Geschosse: 3
    • Rollstuhltauglich
    • Treppenhaus mit einem Personenaufzug (630 kg) und einem Warenlift (1 600 kg) sowie WC-Anlagen pro Stockwerk
Lieu

Birkenstrasse 43a/b
6343 Rotkreuz

Afficher sur Google Maps