Cursor bewegen für Panorama-Ansicht

Prisma Steinhausen

Idealbüros im Dienstleistungs-Park

  • Standort Hinterbergstrasse 24
    6312 Steinhausen
  • Geschoss 1. Obergeschoss
  • Mietpreis 1140.00 CHF/Mt.
  • Nutzfläche 30 m²
  • Art Büro
  • Verfügbarkeit 01.04.2026

Objekt Beschreibung

Die Idealbüros an der Hinterbergstrasse in Steinhausen sind verkehrstechnisch perfekt erschlossen und eignen sich für Jung- und Kleinunternehmen mit einer geringen Mitarbeiterzahl.

Vorteile

  • Die Idealbüros eignen sich für Jung- und Kleinunternehmen mit einer geringen Mitarbeiterzahl
  • Benützung der gemeinsamen Infrastruktur wie Sitzungszimmer, Kleinküche, etc.
  • Alle Kosten im Griff, dank monatlichem Fixbetrag (Miete inkl. NK)
  • Im Mietzins enthalten sind die Stromkosten, die tägliche Reinigung der gemeinsamen Flächen sowie die Nebenkosten für die allgemeine Infrastruktur

 

 

Angebot

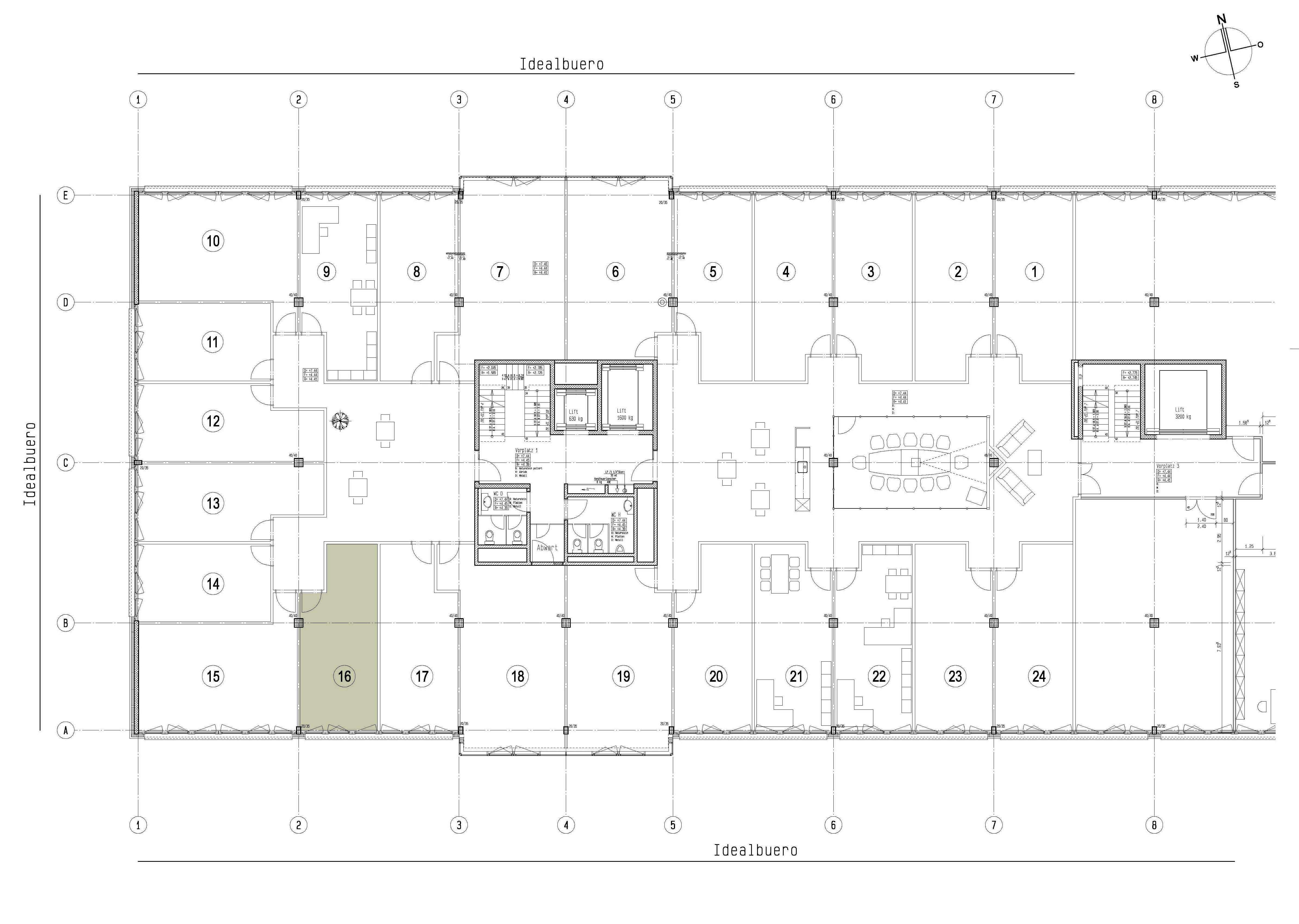
  • 30 m² Einzelbüro Nr. 16 im 1. Obergeschoss
  • 1 Pool-Parkberechtigung in der Autoeinstellhalle oder im Freien
CHF/Mt.
Mietpreis (netto) CHF/Mt. 1140.00
Parkplatz in Autoeinstellhalle CHF/Mt. 190.00
Parkplatz im Freien CHF/Mt. 95.00

Objekt Details

  • Innenausbau
    Fertig ausgebaute Büroräume, Teppichbelag (Kugelgarn), Leichtbauwände mit Abrieb und weiss gestrichen, abgehängte Akustikdecke aus Metall mit Einbauleuchten, Elektro-Erschliessung über Kabelkanal und abgehängte Decke, betriebsbereiter Telefonanschluss am Kabelkanal. Es ist keine Möblierung enthalten.

    Zur Mitbenutzung
    Ein möbliertes Sitzungszimmer für 12 Personen mit kompletter Infrastruktur wie Beamer und White Board, eine Kleinküche mit Bistrotischen- und Hocker, Sitzgruppen im hinteren Bereich sowie zentrale WC-Anlagen im Treppenhaus.

    • 2 Gehminuten zur S5-Bahnhaltestelle Rigiblick nach Zürich HB oder Zug
    • 3 Gehminuten zur Bus-Haltestelle Chamerried und Riedstrasse
    • 10 Gehminuten zur Stadtbahn-Haltestelle Alpenblick und Chollermüli
    • Ristorante Prisma im Gebäude und weitere Verpflegungmöglichkeiten in Gehdistanz
    • Einkaufszentrum Zugerland in 5 Gehminuten erreichbar
    • Baujahr: 2002
    • Anzahl Geschosse: 6
Standort

Hinterbergstrasse 24
6312 Steinhausen

Auf Google Maps anzeigen