Cursor bewegen für Panorama-Ansicht

Ideal gelegene Büroflächen in Cham

Mit bestehendem Innenausbau

  • Standort Riedstrasse 7
    6330 Cham
  • Geschoss 1. Obergeschoss
  • Mietpreis 120.00 CHF/m²/J.
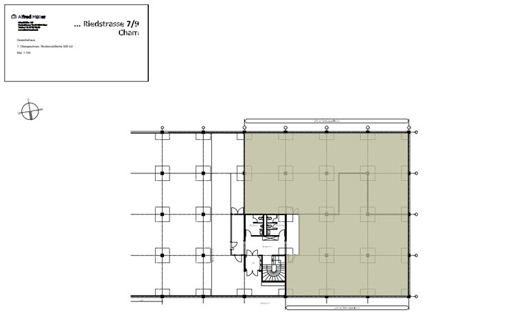
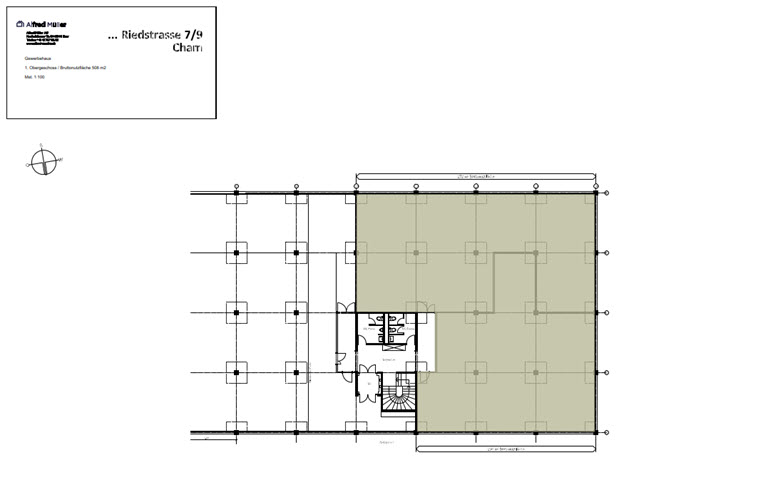
  • Nutzfläche 508 m²
  • Art Büro
  • Verfügbarkeit Nach Vereinbarung

Objekt Beschreibung

Am Stadtrand von Zug, unweit vom Autobahnanschluss Zug und dem Einkaufzentrum Zugerland befindet sich das Gewerbehaus Riedstrasse 7/9.

Die ausgebaute Bürofläche im Hausteil Riedstrasse 7 von 508 m² umfasst mehrere Büroräume und einen grosszügigen Aufenthaltsbereich mit Teeküche. Die rundum vorhandenen Fenster schaffen eine besonders helle und freundliche Arbeitsatmosphäre. In der Mietfläche befinden sich zudem eine private Dusche sowie WC-Anlagen. 

Ansässige Unternehmen schätzen die vorteilhafte Lage und optimale Erreichbarkeit mit öffentlichem sowie auch individualem Verkehr.

Vorteile

  • Ausgebaute Büros
  • Teeküche vorhanden
  • Private Toiletten und Dusche
  • Attraktives Preis-/Leistungsverhältnis
  • Ideale Erreichbarkeit

Angebot

  • Gesamtnutzfläche 508 m² 
  • 1. Obergeschoss
  • Parkplätze im Freien verfügbar

Der Nettomietzins von CHF 120.–/m² gilt für den Grundausbau. Der bestehende Innenausbau kann zur Nutzung übernommen werden. 

Die Räumlichkeiten können in Teilflächen unterteilt und gemietet werden. Es stehen Flächen von 236 m² sowie 272 m² zur Verfügung. 

CHF/m²/J. CHF/Mt.
Mietpreis (netto) CHF/m²/J. 120.00 CHF/Mt. 5080.00
Nebenkosten CHF/m²/J. 20.00 CHF/Mt. 846.65
Parkplatz im Freien CHF/m²/J. CHF/Mt. 80.00

Alle Preise ohne Mehrwertsteuer

Objekt Details

    • Teeküche
    • Laminatböden
    • Maximale Bodenbelastung: 500 kg/m²
    • Bus 100 m
    • Stadtbahn 250 m
    • Einkaufen 400 m
    • Gastronomie 400 m
    • Autobahnanschluss 1200 m
    • Baujahr: 1976
    • Anzahl Geschosse: 3
    • Personen-/Warenlift
    • Private WC-Anlage und Dusche
    • Zusätzliche WC-Anlagen im Treppenhaus
Standort

Riedstrasse 7
6330 Cham

Auf Google Maps anzeigen