Cursor bewegen für Panorama-Ansicht

Attraktive Gewerbefläche für Produktion und Lager mit Hebebühne im Erdgeschoss

  • Standort Oberneuhofstrasse 8
    6340 Baar
  • Geschoss Erdgeschoss
  • Mietpreis 155.00 CHF/m²/J.
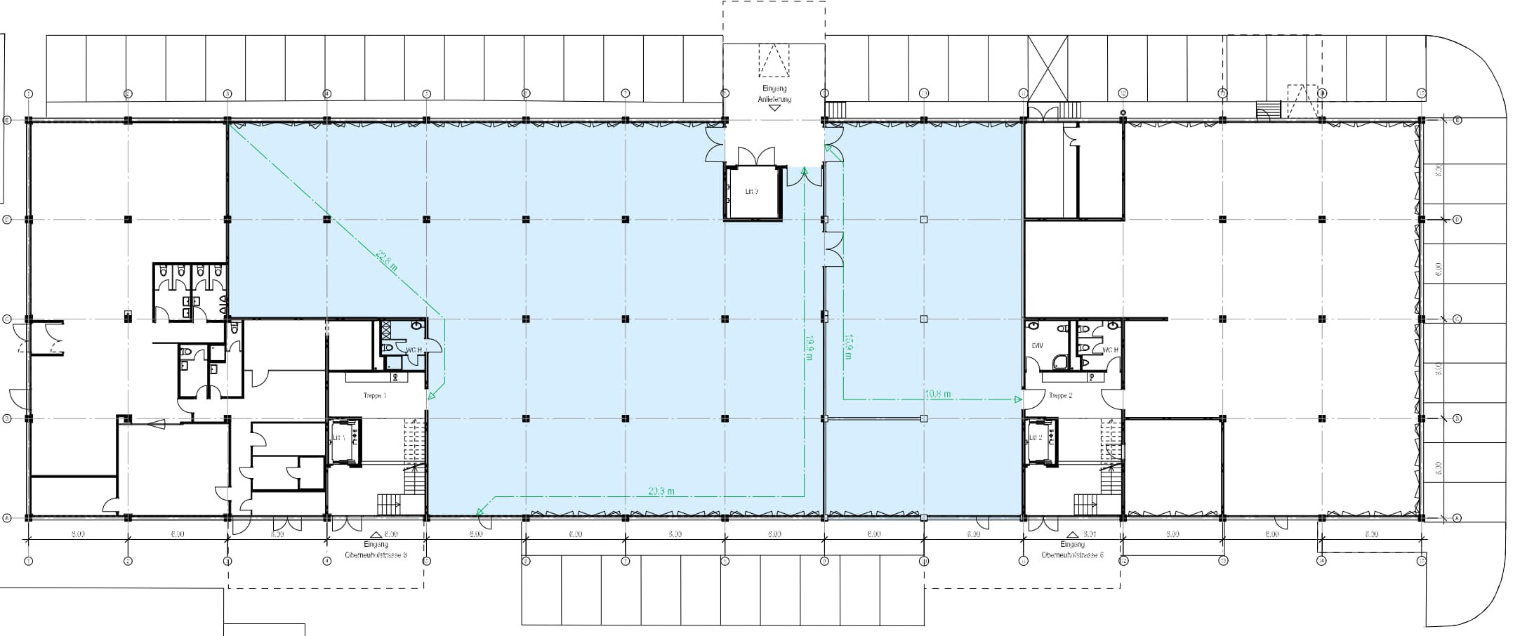
  • Nutzfläche 984 m²
  • Art Gewerbe
  • Verfügbarkeit nach Absprache

Objekt Beschreibung

Das Geschäftshaus befindet sich unweit des Autobahnanschlusses Baar und ist daher verkehrstechnisch gut gelegen. Die S1-Haltestelle Baar-Neufeld mit regelmässigen Verbindungen zu den Bahnhöfen Baar und Zug ist in wenigen Gehminuten erreichbar.

Vorteile

  • Grosse Gewerbefläche
  • Mietfläche im Erdgeschoss
  • Top Verkehrserschliessung mit ÖV
  • Die Fläche verfügt über zwei ebenerdige Zugänge via Falttore
  • Hebebühne auf der Rückseite des Hauses
  • Lagergestelle können erworben werden

Angebot

  • Erdgeschoss
  • Nutzfläche 984m² Bruttofläche
  • 9 Parkplätze im Freien (4 davon vor den Falttoren)
CHF/m²/J. CHF/Mt.
Mietpreis (netto) CHF/m²/J. 155.00 CHF/Mt. 12 710.00
Nebenkosten CHF/m²/J. 18.00 CHF/Mt. 1476.00
Parkplatz im Freien CHF/m²/J. CHF/Mt. 80.00

Alle Preise ohne Mehrwertsteuer

Objekt Details

    • Mietfläche
    • maximale Bodenbelastung: 2000kg/m²
    • Raumhöhe 4.06 Meter
    • Holz-Metallfenster
    • Baujahr 1980
    • Anzahl Geschosse: 4
    • Personenlift (saniert im Jahr 2015)
    • Zentrale WC-Anlagen Damen/Herren getrennt im Treppenhaus (saniert im Jahr 2011)
    • Photovoltaikanlage
    • Glasfaseranschluss
    • Fernwärme

     

Standort

Oberneuhofstrasse 8
6340 Baar

Auf Google Maps anzeigen