Per la visione panoramica muovere il cursore

Ideale Büroflächen für Ihr Unternehmen

Einziehen und starten!

  • Ubicazione Birkenstrasse 43a/b
    6343 Rotkreuz
  • Piano 2° Piano superiore
  • Affitto 160.00 CHF/m²/anno
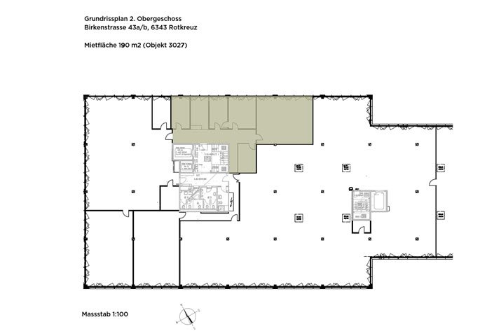
  • Superficie utile 190 m²
  • Tipo Ufficio
  • Disponibilità da subito

Descrizione immobile

An der Birkenstrasse 43a/b in Rotkreuz steht eine Bürofläche von 190 m² zur Miete.

Die als Mehrzweckgebäude konzipierte Liegenschaft erlaubt eine überdurchschnittlich vielseitige und zudem flexible Nutzung. Der bestehende Ausbau umfasst moderne bezugsbereite Büroflächen. Ein funktionaler Aufenthaltsraum mit Teeküche sorgt für zusätzlichen Komfort im Arbeitsalltag. 

Die Mietfläche überzeugt durch ihre grosszügigen Raumhöhen von 3 Metern, die in Kombination mit den lichtdurchfluteten Räumen ein offenes und inspirierendes Arbeitsumfeld schaffen. Die Mietfläche ist über ein Treppenhaus zugänglich, welches über einen Personen- sowie einen Warenlift verfügt. 

In wenigen Minuten ist die Autobahn erreichbar. Ebenso ist der Anschluss an den öffentlichen Verkehr (Bahn und Bus) bequem zu Fuss zu erreichen. Zahlreiche Verpflegungsmöglichkeiten befinden sich in unmittelbarer Umgebung und Gehdistanz.

So könnten Ihre neuen Büroflächen aussehen (Beispiel aus Gesamtfläche 634 m²): 3D-Rundgang

Vantaggi

  • Ausgebaute Büroflächen
  • Attraktives Preis-/Leistungsverhältnis
  • Bestehender Innenausbau spart Investitionen
  • Zentrale Lage für Verbindungen in alle Richtungen
  • Autobahnanschluss und ÖV in Kürze erreichbar

Offerta

  • Nutzfläche 190 m² im 2. Obergeschoss
  • Parkplätze im Freien

Der Nettomietzins von CHF 160.–/m² gilt für den Grundausbau. Der bestehende Innenausbau kann zur Nutzung übernommen werden. 

Die angebotene Fläche ist eine Teilflächenvariante von einer Gesamtbürofläche von 634 m². Kontaktieren Sie uns für Ihre optimale Fläche!

CHF/m²/anno CHF/mese
Affitto (netto) CHF/m²/anno 160.00 CHF/mese 2533.35
Spese accessorie CHF/m²/anno 23.00 CHF/mese 364.15
Parcheggio esterno CHF/m²/anno CHF/mese 75.00

Tutti i prezzi senza IVA

Dettagli immobile

    • Voll ausgebaute Büros und Sitzungszimmer
    • Aufenthaltsraum mit Teeküche
    • Elektrische Installationen und Grundbeleuchtung vorhanden
    • Weitere Raumunterteilungen flexibel möglich
    • Raumhöhe 3 Meter
    • Maximale Bodenbelastung 750kg/m²
    • Autobahnanschluss in 800 Meter Entfernung
    • Bushaltestelle direkt vor der Tür
    • Bahnhof in Kürze zu Fuss erreichbar (500 Meter)
    • Umfassende Verpflegungsmöglichkeiten in der näheren Umgebung
    • Baujahr: 1998
    • Anzahl Geschosse: 3
    • Rollstuhltauglich
    • Treppenhaus mit einem Personenaufzug (630 kg) und einem Warenlift (1 600 kg) sowie WC-Anlagen pro Stockwerk
Ubicazione

Birkenstrasse 43a/b
6343 Rotkreuz

Mostra su Google Maps