Déplacer le curseur pour la vue panoramique

878 m² Büro- und Gewerbefläche in Cham – flexibel kombinierbar

  • Lieu Hinterbergstrasse 9/11
    6330 Cham
  • Etage 1er étage
  • Prix de location 148.90 CHF/m²/an
  • Surface utile 878 m²
  • Type Industrie / Bureau / Industrie
  • Disponibilité nach Vereinbarung

Description de l'objet

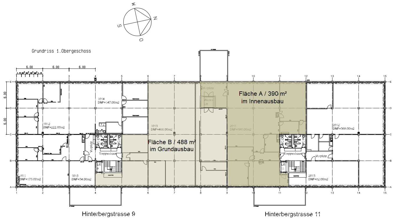
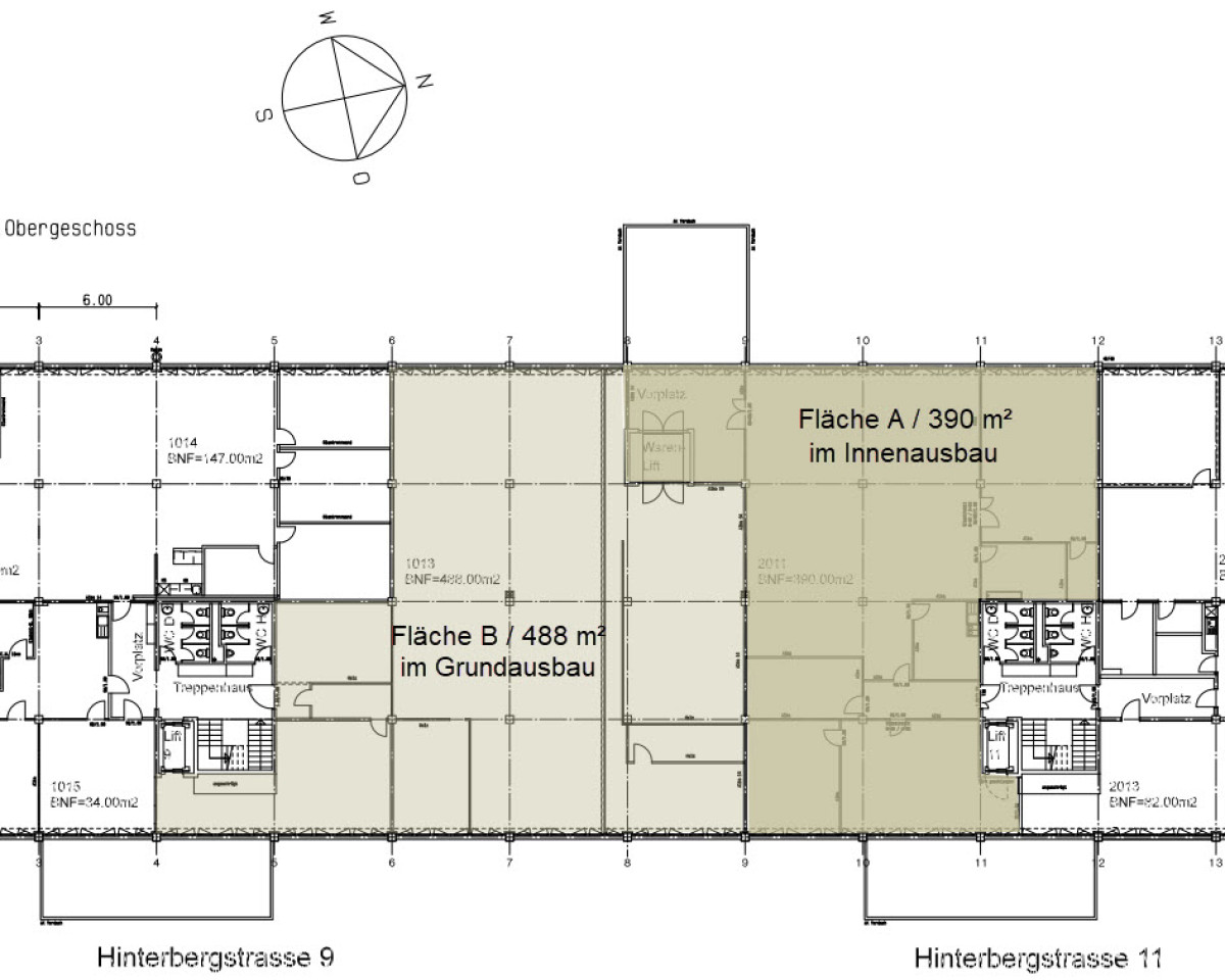
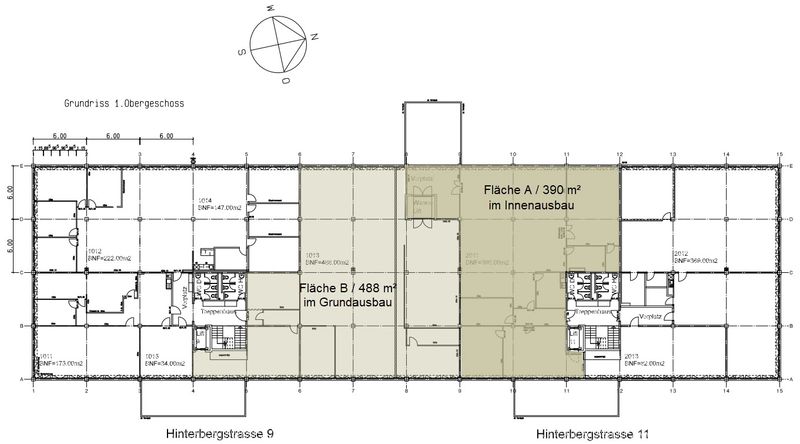
Im 1. Obergeschoss des gepflegten Büro- und Geschäftshauses an der Hinterbergstrasse 9/11 in Cham stehen insgesamt 878 m² Büro- und Gewerbefläche zur Verfügung.
Die Gesamtfläche besteht aus zwei direkt benachbarten Einheiten, die gemeinsam oder einzeln genutzt werden können. Beide Flächen befinden sich auf derselben Etage, verfügen über separate Haupteingänge und sind intern über den Warenlift verbunden.

➡ Ideal für Unternehmen, die Struktur, Wachstum und Flexibilität kombinieren möchten

Avantages

  • 878 m² Gesamtfläche auf einer Etage
  • Kombination aus Innenausbau und Grundausbau
  • Direkter Zugang zum Warenlift für beide Flächen
  • Separate Haupteingänge – klare Organisation
  • Hohe Bodenbelastung: 1’000 kg/m²
  • 2 Minuten zur Autobahn Luzern / Zürich
  • 5 Gehminuten zur Stadtbahn Rigiblick
  • Einkauf, Gastronomie und Fitness in Gehdistanz

Offre

Fläche A – 390 m² | sofort bezugsbereit

  • Vollständig ausgebaut (Innenausbau Sommer 2020)
  • Helle, funktional ausgebaute Büroräume
  • Vinyl-/Laminatböden, Glas- und Tapetenwände
  • Abgehängte Decken mit integrierter Beleuchtung
  • Teeküche vorhanden
    ➡ Einziehen und loslegen

Fläche B – 488 m² | Grundausbau

  • Rohfläche mit Betonböden und -decken
  • Fensterfronten Ost / West
  • Technisch voll erschlossen
  • Ideal für individuellen Ausbau nach Bedarf
    ➡ Gestalten und wachsen
CHF/m²/an CHF/mois
Prix de location (net) CHF/m²/an 148.90 CHF/mois 10 893.30
Charges CHF/m²/an 23.00 CHF/mois 936.30
Place de parc à l'extérieur CHF/m²/an CHF/mois 60.00

Prix sans TVA

Détails de l'objet

  • 390 m² mit Innenausbau

    • Holz-Metallfenster (2010)
    • Elektrische Lamellenstoren
    • Vinyl-/Laminat in allen Räumen
    • Innenwände mit Tapeten, teilweise aus Glas
    • Teilweise Mineralfaserdecken (fein weiss) mit integrierter Beleuchtung und Beton roh, weiss gestrichen
    • Akustikdecke mit integrierter Beleuchtung
    • In der Teeküche Deckenpanelen hängend
    • Teeküche mit hängenden Deckenpanelen, zentrale Abluft
    • Nutzung als Büro, Lager oder Werkstatt (stilles Gewerbe)

    488 m² im Grundausbau

    • Fenster Holz/Metall mit Isolierverglasung, leicht getönt
    • Aluminium-Verbundraffstoren (teilweise elektrisch)
    • Böden: Zementüberzug roh
    • Wände: Roh (Kalksandstein / Gips-Sandwich)
    • Decken: Beton roh
    • Heizung: Heizwände entlang der Fensterfronten
    • Elektro: Auslegung bis 50 W/m², Hauptverteilung im EG
    • Telefon-/Datenerschliessung über Steigzonen im Treppenhaus
      ➡ Optimale Grundlage für einen massgeschneiderten Ausbau nach Mieterwunsch.
    • 2 Gehminuten Bushaltestelle Chamerried
    • 5 Gehminuten Stadtbahn Rigiblick
    • 2 Fahrminuten Autobahnanschluss Luzern / Zürich
    • ca. 30 Minuten Flughafen Zürich (A4)
    • Einkaufszentrum Zugerland und Restaurants in Gehdistanz
    • Baujahr: 1981
    • Renovationsjahr: 2010
    • Anzahl Geschosse: 4
    • Raumhöhe: 3.06 m
    • Personenlift
    • Warenlift
    • Anfahrrampe
    • Zentrale WC-Anlagen Damen/Herren getrennt im Treppenhaus
Lieu

Hinterbergstrasse 9/11
6330 Cham

Afficher sur Google Maps