
Bürolösungen nach Ihren Vorstellungen
Flexibel planen, komfortabel arbeiten
-
Lieu Neuhofstrasse 10
6340 Baar -
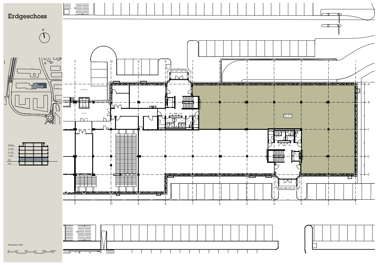
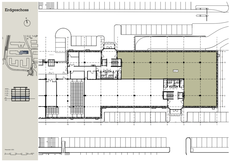
Etage Rez-de-chaussée
-
Prix de location 216.00 CHF/m²/an
-
Surface utile 724 m²
-
Type Bureau
-
Disponibilité 01.01.2026
Description de l'objet
Das 1989 erstellte Bürogebäude an der Neuhofstrasse 6/10 in Baar mit seiner markanten, bronzenen Metallfassade wird im Innern einer kompletten Erneuerung unterzogen.
Zu den Neuerungen zählen die vollständige Modernisierung der Eingänge, Treppenhäuser sowie der WC-Anlagen. Ergänzend entstehen barrierefreie Behinderten-Toiletten und grosszügige Dusch - sowie Umkleideräume - ideal für sportlich aktive Mitarbeitende.
Das Gebäude überzeugt durch eine hohe Energieeffizienz, erreicht durch eine CO2-freie Grundwasser-Wärmepumpe sowie eine leistungsstarke Photovoltaikanlage. Eine zentrale Lüftungs- und Kühlanlage sorgt für ein optimales Raumklima – die Basis für ein komfortables und gesundes Arbeitsumfeld.
Direkt angrenzend liegt das Geschäftshaus Neuhofstrasse 8/12, in dem das Restaurant Story mit 140 Sitzplätzen betrieben wird. Die zuwebe verwöhnt hier mit einem gesunden, abwechslungsreichen Angebot in modernem Ambiente. Im selben Gebäude befindet sich das .kuia.office. der Alfred Müller AG - ein flexibles Meetingangebot mit Sitzungsräumen in diversen Grössen, die stunden- und tageweise buchbar sind.
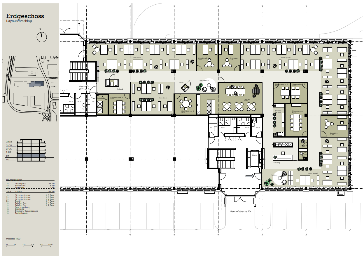
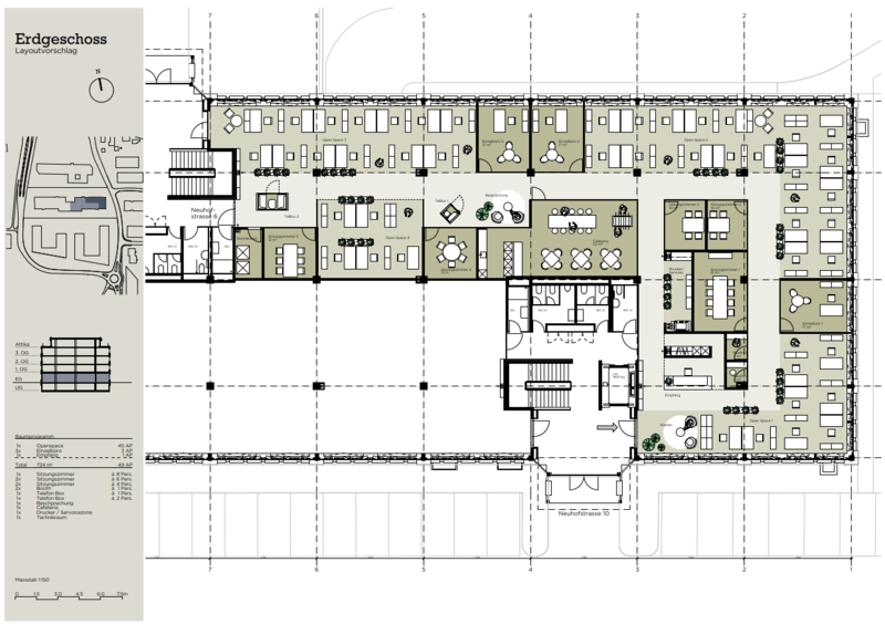
Dadurch, dass die Mietfläche im Rohbau angeboten wird, bietet dies Ihnen die einmalige Gelegenheit, den Mieterausbau nach Ihren individuellen Vorstellungen und betrieblichen Anforderungen zu bestimmen. Der Nettomietzins von CHF 216.–/m² gilt für den Rohbau.
Entdecken Sie hier, wie Ihr neues Büro aussehen kann: 3D-Rundgang
Avantages
- Beste Verkehrsanbindung: 5 Min. zum S1-Halt Baar Neufeld, 2 Min. zur A4, 2 Minuten zur Bushaltstelle Baar Metro
- Komfort vor Ort: Restaurant, Sitzungsräume und Duschen im selben Gebäudekomplex
- Umfassender Grundausbau: Komplett rundum erneuert
- Modernes Arbeitsklima: Zentrale Lüftung und Kühlung für optimalen Komfort
- Nachhaltige Mobilität: Europcar-Sharing Standort mit zwei Elektroautos
- Attraktives Preis-Leistungs-Verhältnis: Faire Verträge und Konditionen
- Alles aus einer Hand: Eigentümer, Vermieter, Innenausbau und Bewirtschaftung
Offre
- Erdgeschoss
- Nutzfläche 724 m²
- Lagerfläche 47 m²
- 8 Parkplätze in der Autoeinstellhalle
- 6 Parkberechtigungen im Freien
CHF/m²/an | CHF/mois | |
---|---|---|
Prix de location (net) | CHF/m²/an 216.00 | CHF/mois 13 032.00 |
Charges | CHF/m²/an 20.00 | CHF/mois 1206.65 |
Prix du disponible | CHF/m²/an 120.00 | CHF/mois 470.00 |
Frais accessoires disponible | CHF/m²/an 10.00 | CHF/mois 39.15 |
Place de parc à l'intérieur | CHF/m²/an | CHF/mois 240.00 |
Place de parc à l'extérieur | CHF/m²/an | CHF/mois 120.00 |
Prix sans TVA
Détails de l'objet
-
- Flächen im Grundausbau (Lüftung und Kälte bis an die Mietfläche geführt)
- Maximale Bodenbelastung: 1 500 kg/m²
- Glasfaseranschluss
-
- Autobahnanschluss: 800 Meter zur A4
- Öffentlicher Verkehr: 200 Meter zur Bushaltstelle Baar Metro, 350 Meter zum S1-Halt Baar Neufeld (mit direkter Verbindung bis nach Baar und Luzern / Sursee)
- Gastronomie: Restaurant Story im Haus, weitere Restaurants in unmittelbarer Nähe sowie täglich wechselnde Food-Trucks
- Sport: 500 Meter zum Naherholungsgebiet entlang der Lorze
Die steuergünstige Gemeinde Baar grenzt an das Wirtschaftszentrum Zug. Mit Zürich und Luzern sind zwei Finanz-, beziehungsweise Tourismusmetropolen bequem in 30 Minuten mit Auto und ÖV erreichbar. Mit dem Zugerberg und Zugersee am Fusse der Voralpen verfügt der Standort zudem über herrliche Naherholungsgebiete. Spaziergänge oder Jogging-Touren entlang der Lorze eignen sich ideal für erholsame Mittagspausen.
-
- Baujahr: 1989
- Renovationsjahr: 2025
- Anzahl Geschosse: 5
- Raumhöhe: 3.52m
- Personenlift
- Rollstuhltauglich
- Gebührenpflichtige Besucher-Parkplätze
- Ladestationen für Elektrofahrzeuge
- Überdeckte Velo- und Rollerabstellplätze
- Photovoltaikanlage
-