Cursor bewegen für Panorama-Ansicht

Geschäftshaus Neuhof

Modernes Innenleben

  • Standort Neuhofstrasse 8
    6340 Baar
  • Geschoss 1. Obergeschoss
  • Mietpreis 310.00 CHF/m²/J.
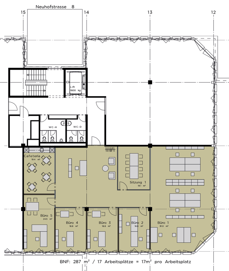
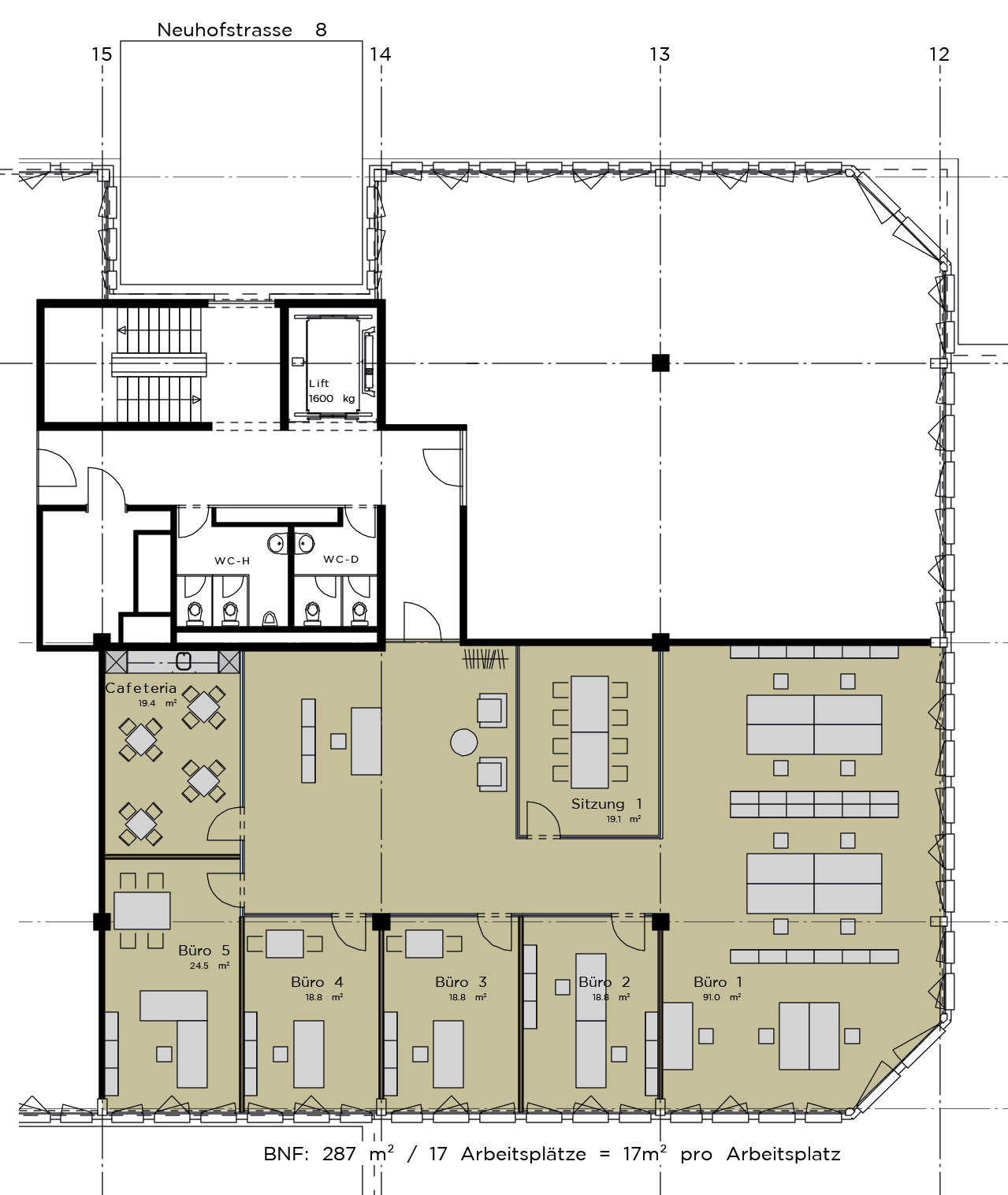
  • Nutzfläche 287 m²
  • Art Büro / Geschäftshaus
  • Verfügbarkeit 01.10.2026

Objekt Beschreibung

Das 1989 erstellte Bürogebäude an der Neuhofstrasse 8/12 in Baar mit seiner markanten, bronzenen Metallfassade wurde im Innern einer umfassenden Erneuerung unterzogen.

Die Sanierung des Gebäudes umfasste die Modernisierung der Eingänge und Treppenhäuser sowie der WC-Anlagen, wo ausserdem zusätzliche Behinderten-Toiletten und Duschen für sportlich Aktive installiert wurden. Eine neue, zentrale Lüftungs- und Kälteanlage sorgt ganzjährig für ein behagliches und ruhiges Arbeiten in allen Büroräumen.

Die zuwebe betreibt ein modernes Restaurant mit rund 140 Sitzplätzen. Es bietet Mitarbeitenden und Gästen ein reichhaltiges und gesundes Verpflegungsangebot in einem erfrischenden Ambiente. Jeden Tag wechselnde Food-Trucks auf dem Areal und in der Nachbarschaft, sowie das Restaurant Neuhof ergänzen das kulinarische Angebot für Sie und Ihre Mitarbeitenden. Die unmittelbare Nähe zur S-Bahnhaltestelle Neufeld und Busstation Metro, sowie der nur zwei Fahrminuten entfernte Autobahnanschluss Zug-Baar, sind weitere klare Pluspunkte des Neuhofs, dessen Angebot sich durch ein attraktives Preis-Leistungsverhältnis auszeichnet.

Vorteile

  • Beste Verkehrsanbindung: 5 Min. zum S1-Halt Baar Neufeld, 2 Min. zur A4, 2 Minuten zur Bushaltstelle Baar Metro
  • Komfort vor Ort: Restaurant, Sitzungsräume und Duschen im selben Gebäudekomplex
  • Nachhaltige Mobilität: Europcar-Sharing Standort mit zwei Elektroautos
  • Attraktives Preis-Leistungs-Verhältnis: Faire Verträge und Konditionen
  • Alles aus einer Hand: Eigentümer, Vermieter, Innenausbau und Bewirtschaftung

Angebot

  • Nutzfläche 287 m²
  • 2 Parkplätze in der Autoeinstellhalle
  • 2 Parkplätze im Freien
CHF/m²/J. CHF/Mt.
Mietpreis (netto) CHF/m²/J. 310.00 CHF/Mt. 7414.00
Nebenkosten CHF/m²/J. 30.00 CHF/Mt. 718.00
Parkplatz in Autoeinstellhalle CHF/m²/J. CHF/Mt. 240.00
Parkplatz im Freien CHF/m²/J. CHF/Mt. 120.00

Alle Preise ohne Mehrwertsteuer

Objekt Details

    • Küche mit Kühlschrank, Geschirrspüler und Mikrowelle
    • Bodenbeläge in Kugelgarn
    • Deckenbeleuchtung in LED
    • Mietfläche gelüftet und gekühlt
    • 4 Einzelbüros
    • 1 Meetingroom
    • Grosszügiger OpenSpace-Bereich
    • Serverraum gekühlt
    • Ohne Möbelierung
    • Baujahr: 1989

    • Renovationsjahr: 2021

    • Anzahl Geschosse: 5

    • Personenlift

    • Rollstuhltauglich

    • Duschen für Sportbegeisterte

    • Ladestationen für Elektrofahrzeuge

    • Glasfaseranschluss

    • Überdeckte Velo- und Rollerabstellplätze

    • Photovoltaikanlage
Standort

Neuhofstrasse 8
6340 Baar

Auf Google Maps anzeigen